Back to results New 4LDK Model House in Abashiri, Hokkaido | 116.75 sqm

Needs Verification

This listing hasn't been verified recently. Tap to request a priority check!

Know someone who would love this? Gift them a subscription

¥39,800,000

Komabaminami 8-chome 189-29, Abashiri City, Hokkaido

北海道網走市駒場南8丁目189-29

Sign in to save properties

Work with our partners to help you search, evaluate, and purchase property in Japan.

Book a Consultation
Buy House New Build Modern House Rural

Unlock the full description with a free trial

Includes AI translation, hazard data, cost estimates & nearby amenities

3 days free · cancel anytime

Start Free Trial

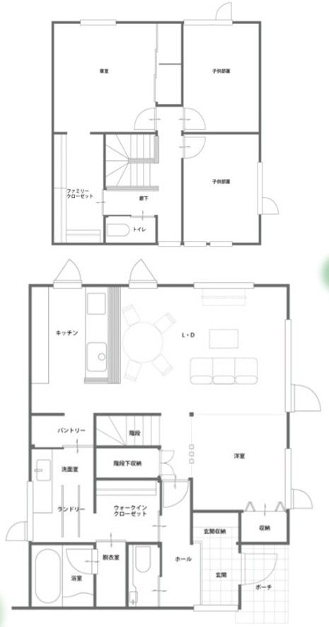
Model House in Abashiri: A Thoughtfully Designed Home for Hokkaido Living

The construction company, Woody Craft Co., Ltd., has meticulously planned this home. A key feature is the 2-way household traffic flow, designed to make chores and returning home smooth and efficient. The interior is a space where you can feel the warmth of wood, thanks to the abundant use of solid timber. The plan is both comfortable and realistic, thoroughly considered for a lifestyle in the northern country. The agent's remarks emphasize, "Please experience it firsthand at the site."

This description was AI-generated from the original Japanese listing and may contain inaccuracies. Please verify details with the source listing.

Summary

Bedrooms: 4
Year built: 2026
Land size: 233 / 2,509sqft
House size: 117 / 1,257sqft

Short-Term Rental (Minpaku)

Transport

CTS

New Chitose Airport — 249 km away

Nearby Konbini

Seicomart Seicomart — 5 min walk

Internet Connectivity

Natural Hazard Assessment

Flood Risk Low Risk
Landslide Risk Moderate
Tsunami Risk Low Risk
Earthquake Hazard Moderate

Unlock hazard data with a free trial

Flood, landslide, tsunami & earthquake risk for this property

3 days free · cancel anytime

Start Free Trial

Purchase Cost & Tax Estimates

Agent fees, acquisition tax, registration costs & annual property tax

Airbnb Revenue Estimate

Projected nightly rate, occupancy & net income for this property

Investment ROI

Annual yield, break-even timeline & 10-year return projection

Map & Street View

Map loading...

Location Accuracy Notice: Although we try to make the map accurate with coordinates or address details provided, the location data is provided by the agent. This map data should be used as reference for the surrounding area foremost.

Location Type Beds Price Land House View

* Sold properties shown for price comparison only. Prices reflect historical sale data.

Location Type Beds Rent/Month Land House View

* Rental prices shown are monthly rates. Contact property owner for current availability.