Back to results 5DK House for Sale in Higashiomi City, Shiga
Added 7 days ago
¥3,800,000

Miyagawa-cho, Higashiomi City, Shiga Prefecture

滋賀県東近江市宮川町

Buy House Gas Heating/Cooking Rural Quiet Area

Know someone who would love this? Gift them a subscription

This property has more to show

Earthquake & flood hazard assessment
Purchase cost & tax estimates
Full AI-translated description

Trusted by property buyers worldwide

Start 3-Day Free Trial

$5/month after trial · Cancel anytime

Detached House for Sale in Higashiomi City, Shiga Prefecture

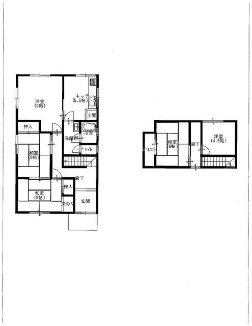
This property is a detached house for sale located in Miyagawa-cho, Higashiomi City, Shiga Prefecture. The house was built in June 1975 and features a light-gauge steel structure over two stories. The total floor area is 103.1 sqm (approximately 31.18 tsubo), arranged in a 5DK layout, offering multiple rooms for flexible living arrangements.

According to the agent's notes, the property is situated on a regular-shaped plot. The land area is 193.8 sqm (approximately 58.62 tsubo) and is designated as residential land. The property is located in an Urban Planning Adjustment Area with no specific use district designation. The building-to-land ratio is 70% and the floor area ratio is 200%. The land is flat and fronts a 6.4-meter wide public road to the east. The property includes parking space.

The house is equipped with a bathroom that has a window, propane gas, electricity, tap water, sewerage, and side ditches. The property is currently occupied, and the handover date is negotiable. The nearest major train station is Omihachiman Station on the Tokaido Main Line, from where a 40-minute bus ride to the Nagamine Community Center bus stop is required, followed by a 7-minute walk to the property. Nearby amenities include a FamilyMart convenience store (1,931m), a Komeri Home & Garden Center (2,985m), and the Roadside Station Agripark Ryuo (2,548m). The local elementary school is Higashiomi City Gamo Kita Elementary School (1,995m).

This description was AI-generated from the original Japanese listing and may contain inaccuracies. Please verify details with the source listing.

Summary

Bedrooms: 5
Parking: 1
Year built: 1975
Land size: 194 / 2,086sqft
House size: 103 / 1,110sqft

Short-Term Rental (Minpaku)

Transport

Nearby Konbini

Seven Eleven Seven Eleven — 16 min walk
Family Mart Family Mart — 17 min walk
Lawson Lawson — 18 min walk

Internet Connectivity

Natural Hazard Assessment

Hazard data is a subscriber feature

Know the flood, landslide & tsunami risks before you buy

View Plans
¥3,800,000
Purchase Cost & Tax Estimates
Subscribe
Agent fee (3% + tax)¥000,000
Acquisition tax¥000,000
Registration & stamp¥000,000
Property tax (annual)¥00,000/yr
Subscribe to view cost & tax estimates →
Nightly Rate
Occupancy Rate
Max operating days/year
Est. booked nights/year
Gross annual revenue
Expenses breakdown
Cleaning
Platform fees (3%)
Management (20%)
Supplies
Insurance
Utilities
Total expenses
Net annual income
Monthly equivalent

Actual revenue varies by location, property quality, season, and management. Adjust sliders to model different scenarios.

Renovation Budget
Annual Rental Income

Auto-filled from Airbnb estimate

Purchase price
Renovation
Transaction costs
Total investment
Property tax
Insurance
Maintenance
Annual yield
Break-even
5-year return
10-year return
0 yr5101520+

Estimates only. Actual returns depend on rental demand, management quality, renovation scope, and market conditions. Adjust sliders to model scenarios.

Miyagawa-cho, Higashiomi City, Shiga Prefecture

滋賀県東近江市宮川町

Get Started

Sign in to save properties

Map & Street View

Map loading...

Location Accuracy Notice: Although we try to make the map accurate with coordinates or address details provided, the location data is provided by the agent. This map data should be used as reference for the surrounding area foremost.

Location Type Beds Price Land House View

* Sold properties shown for price comparison only. Prices reflect historical sale data.

Location Type Beds Rent/Month Land House View

* Rental prices shown are monthly rates. Contact property owner for current availability.