Back to results 2SLDK Detached House for Sale in Kita-ku, Tokyo

Verified Listing

This property was checked recently and confirmed to still be available. Tap for details.

Verified Listing

This property has been verified in the last month. Our system regularly checks listings to ensure they are still available.

Last verified: April 23, 2026

Know someone who would love this? Gift them a subscription

¥79,900,000

Tokyo, Kita-ku, Nakajujo 4-chome

東京都北区中十条4丁目

Sign in to save properties

Work with our partners to help you search, evaluate, and purchase property in Japan.

Book a Consultation
Buy Move-in Ready Near Station House Parking City Center Stadium Aquarium

Unlock the full description with a free trial

Includes AI translation, hazard data, cost estimates & nearby amenities

3 days free · cancel anytime

Start Free Trial

Property Overview

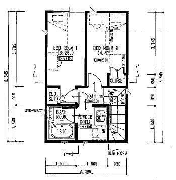
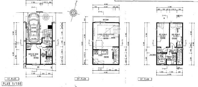
This is a 2SLDK second-hand detached house located in Nakajujo 4-chome, Kita-ku, Tokyo. The property was built in November 2017 and offers a total floor area of 71.04 square meters on a land area of 44.71 square meters. The building is a three-story wooden structure.

Key features and equipment include city gas, a public water supply, a sewer system, air conditioning, electricity, a reheating function for the bath, an automatic bath, and a walk-in closet.

Special notes: Parking is available free of charge, and the property has already been setback to comply with building regulations.

The property is currently tenanted and is located an 8-minute walk from Higashi-Jujo Station on the Keihin-Tohoku/Negishi Line. The neighborhood is a residential area in Kita-ku, with easy access to central Tokyo.

This description was AI-generated from the original Japanese listing and may contain inaccuracies. Please verify details with the source listing.

Summary

Bedrooms: 2
Parking: 1
Year built: 2017
Land size: 45 / 481sqft
House size: 71 / 765sqft

Short-Term Rental (Minpaku)

Transport

HND

Haneda Airport — 25 km away

Nearest Konbini

sunkus Sunkus — 4 min walk

Internet Connectivity

Natural Hazard Assessment

Flood Risk Low Risk
Landslide Risk Moderate
Tsunami Risk Low Risk
Earthquake Hazard Moderate

Unlock hazard data with a free trial

Flood, landslide, tsunami & earthquake risk for this property

3 days free · cancel anytime

Start Free Trial

Purchase Cost & Tax Estimates

Agent fees, acquisition tax, registration costs & annual property tax

Airbnb Revenue Estimate

Projected nightly rate, occupancy & net income for this property

Investment ROI

Annual yield, break-even timeline & 10-year return projection

Map & Street View

Map loading...

Location Accuracy Notice: Although we try to make the map accurate with coordinates or address details provided, the location data is provided by the agent. This map data should be used as reference for the surrounding area foremost.

Location Type Beds Price Land House View

* Sold properties shown for price comparison only. Prices reflect historical sale data.

Location Type Beds Rent/Month Land House View

* Rental prices shown are monthly rates. Contact property owner for current availability.