Back to results 4LDK Apartment for Sale in Otsu, Shiga - Avante Otsu Stella Villa

Verified Listing

This property was checked recently and confirmed to still be available. Tap for details.

Verified Listing

This property has been verified in the last month. Our system regularly checks listings to ensure they are still available.

Last verified: April 21, 2026

Know someone who would love this? Gift them a subscription

¥13,800,000

2-chome, Hiratsu, Otsu City, Shiga Prefecture

滋賀県大津市平津2丁目

Sign in to save properties

Work with our partners to help you search, evaluate, and purchase property in Japan.

Book a Consultation
Buy Move-in Ready Garden Apartment Parking Suburban Quiet Area Reinforced Concrete

Unlock the full description with a free trial

Includes AI translation, hazard data, cost estimates & nearby amenities

3 days free · cancel anytime

Start Free Trial

Avante Otsu Stella Villa: A Spacious 4LDK Apartment in Otsu, Shiga

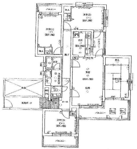
This property is a 95.04 sqm, 4LDK apartment located in the Avante Otsu Stella Villa condominium in Otsu City, Shiga Prefecture. Built in June 1992, the 34-year-old reinforced concrete building has 32 units and stands 5 stories tall, with this particular apartment situated on the 3rd floor. The layout offers a generous living, dining, and kitchen area of over 15 tatami mats, providing ample space for family living. It includes a Japanese-style room, which can serve as a children's play area or a guest room. A notable feature is the presence of four separate balconies, totaling 21.02 sqm, which enhance the sense of openness and ventilation throughout the unit.

According to the agent's notes, the building facilities include a manager who performs patrols. Critical special notes regarding the transaction state that creditor consent for deletion is required, and there is a disclaimer of liability for any inappropriate contracts concerning the land, building, and attached equipment.

The location offers convenient access to public transport, with Ishiyamadera Station (Keihan Ishiyama Sakamoto Line) a 5-minute bus ride plus a 1-minute walk from the "Shiga Dai Nishimon" bus stop. JR Ishiyama Station (Tokaido Main Line) is also accessible via a 12-minute bus ride plus a 1-minute walk. The neighborhood is well-serviced with amenities within walking distance, including a supermarket (Super Friend Mart Ishiyamadera Hen) and a convenience store (Mini Stop) both about a 10-minute walk away, as well as a drugstore (Welcia), kindergartens, and elementary and junior high schools.

Monthly costs include a management fee of 8,850 yen and a repair reserve fund of 15,600 yen. The property is listed for sale at 13,800,000 yen.

This description was AI-generated from the original Japanese listing and may contain inaccuracies. Please verify details with the source listing.

Summary

Bedrooms: 4
Parking: 1
Year built: 1992
House size: 95 / 1,023sqft
Balcony size: 21 / 226sqft

Short-Term Rental (Minpaku)

Transport

ITM

Osaka International Airport — 46 km away

Nearby Konbini

Mini Stop Mini Stop — 7 min walk

Internet Connectivity

Natural Hazard Assessment

Flood Risk Low Risk
Landslide Risk Moderate
Tsunami Risk Low Risk
Earthquake Hazard Moderate

Unlock hazard data with a free trial

Flood, landslide, tsunami & earthquake risk for this property

3 days free · cancel anytime

Start Free Trial

Purchase Cost & Tax Estimates

Agent fees, acquisition tax, registration costs & annual property tax

Airbnb Revenue Estimate

Projected nightly rate, occupancy & net income for this property

Investment ROI

Annual yield, break-even timeline & 10-year return projection

Map & Street View

Map loading...

Location Accuracy Notice: Although we try to make the map accurate with coordinates or address details provided, the location data is provided by the agent. This map data should be used as reference for the surrounding area foremost.

Location Type Beds Price Land House View

* Sold properties shown for price comparison only. Prices reflect historical sale data.

Location Type Beds Rent/Month Land House View

* Rental prices shown are monthly rates. Contact property owner for current availability.