Back to results 2SLDK Family Home with Elevator near Sakurayama Station, Nagoya

Needs Verification

This listing hasn't been verified recently. Tap to request a priority check!

Know someone who would love this? Gift them a subscription

¥98,000,000

2-chome Kawasumi-cho, Mizuho Ward, Nagoya City, Aichi Prefecture

愛知県名古屋市瑞穂区川澄町2丁目

Sign in to save properties

Work with our partners to help you search, evaluate, and purchase property in Japan.

Book a Consultation
Buy Near Station House Parking Suburban Quiet Area Legoland Ghibli Park Stadium Aquarium

Unlock the full description with a free trial

Includes AI translation, hazard data, cost estimates & nearby amenities

3 days free · cancel anytime

Start Free Trial

Spacious Two-Storey Family Home with Elevator in Nagoya's Serene Residential Area

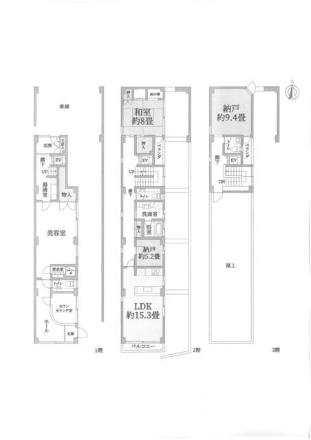
This substantial property presents a rare opportunity to acquire a well-maintained, elevator-equipped family home in a quiet residential district of Nagoya's Mizuho Ward. Built in July 2001, this reinforced concrete (RC) structure offers a generous total floor area of 175.83 sqm (approximately 53.18 tsubo) on a flat, regularly shaped plot of 162.14 sqm (approximately 49.04 tsubo). The layout is configured as 2SLDK, providing versatile living spaces including an 8-tatami Japanese-style room, a 10-tatami Western-style room, a spacious 15.3-tatami combined living-dining-kitchen (LDK) area, and two service rooms measuring 5.2 and 9.4 tatami respectively.

Translated agent notes detail a comprehensive list of equipment and features. The property is equipped with two toilets, both featuring bidet functions with warm water washing. The bathroom includes an auto bath, a window for ventilation, and a shower-equipped vanity. The kitchen is a modern system kitchen. All rooms are fitted with air conditioning, flooring, built-in storage, and downlights. Additional amenities include a monitor-equipped intercom, city gas, and public water and sewer systems. The special notes highlight the home's location in a quiet residential neighborhood, its regular-shaped lot, concrete exterior walls, and the scheduled construction completion date of July 2001.

This description was AI-generated from the original Japanese listing and may contain inaccuracies. Please verify details with the source listing.

Summary

Bedrooms: 2
Parking: 2
Year built: 2001
Land size: 162 / 1,745sqft
House size: 176 / 1,893sqft

Short-Term Rental (Minpaku)

Transport

Nearby Konbini

Mini Stop Mini Stop — 2 min walk

Internet Connectivity

Natural Hazard Assessment

Flood Risk Low Risk
Landslide Risk Moderate
Tsunami Risk Low Risk
Earthquake Hazard Moderate

Unlock hazard data with a free trial

Flood, landslide, tsunami & earthquake risk for this property

3 days free · cancel anytime

Start Free Trial

Purchase Cost & Tax Estimates

Agent fees, acquisition tax, registration costs & annual property tax

Airbnb Revenue Estimate

Projected nightly rate, occupancy & net income for this property

Investment ROI

Annual yield, break-even timeline & 10-year return projection

Map & Street View

Map loading...

Location Accuracy Notice: Although we try to make the map accurate with coordinates or address details provided, the location data is provided by the agent. This map data should be used as reference for the surrounding area foremost.

Location Type Beds Price Land House View

* Sold properties shown for price comparison only. Prices reflect historical sale data.

Location Type Beds Rent/Month Land House View

* Rental prices shown are monthly rates. Contact property owner for current availability.