Back to results 4SLDK Detached House for Sale in Warabi, Saitama

Verified Listing

This property was checked recently and confirmed to still be available. Tap for details.

Verified Listing

This property has been verified in the last month. Our system regularly checks listings to ensure they are still available.

Last verified: April 20, 2026

Know someone who would love this? Gift them a subscription

¥40,800,000

3-chome, Nishikicho, Warabi City, Saitama Prefecture

埼玉県蕨市錦町3丁目

Sign in to save properties

Work with our partners to help you search, evaluate, and purchase property in Japan.

Book a Consultation
Buy Move-in Ready Garden House Parking Suburban Quiet Area Stadium

Unlock the full description with a free trial

Includes AI translation, hazard data, cost estimates & nearby amenities

3 days free · cancel anytime

Start Free Trial

Detached House in Warabi City, Saitama

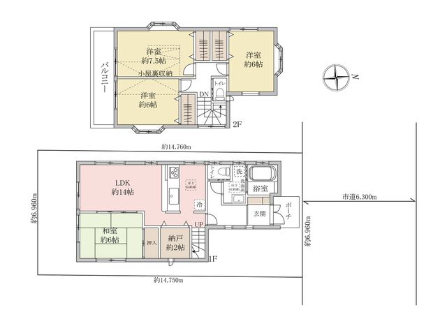
This property is a second-hand detached house built in July 2005, located in Warabi City, Saitama Prefecture. The house offers a 4SLDK layout plus a storage room, with each room being 6 tatami mats or larger. The total building area is 98.53 sqm (approximately 29.80 tsubo), situated on a land plot of 102.67 sqm (approximately 31.05 tsubo). The property is within walking distance of JR Saikyo Line's "Kitakoda" Station (18 minutes), JR Keihin-Tohoku/Negishi Line's "Warabi" Station (22 minutes), and "Minami-Urawa" Station (29 minutes).

According to the agent's notes, the road access details are: North side, road width 6.3m, frontage 6.9m. Special notes indicate that parking is free and no setback is required. The property features include city gas, public water supply, a separate kitchen and bathroom, a bathroom ventilation dryer, flooring, storage spaces, underfloor storage, closets, a balcony, a bath, and a toilet. The front road is 6 meters or wider. The property is currently vacant. The transaction type is exclusive agency.

This description was AI-generated from the original Japanese listing and may contain inaccuracies. Please verify details with the source listing.

Summary

Bedrooms: 4
Parking: 1
Year built: 2005
Land size: 103 / 1,105sqft
House size: 99 / 1,061sqft

Short-Term Rental (Minpaku)

Transport

HND

Haneda Airport — 32 km away

Nearby Konbini

Seven Eleven Seven Eleven — 5 min walk

Internet Connectivity

Natural Hazard Assessment

Flood Risk Low Risk
Landslide Risk Moderate
Tsunami Risk Low Risk
Earthquake Hazard Moderate

Unlock hazard data with a free trial

Flood, landslide, tsunami & earthquake risk for this property

3 days free · cancel anytime

Start Free Trial

Purchase Cost & Tax Estimates

Agent fees, acquisition tax, registration costs & annual property tax

Airbnb Revenue Estimate

Projected nightly rate, occupancy & net income for this property

Investment ROI

Annual yield, break-even timeline & 10-year return projection

Map & Street View

Map loading...

Location Accuracy Notice: Although we try to make the map accurate with coordinates or address details provided, the location data is provided by the agent. This map data should be used as reference for the surrounding area foremost.

Location Type Beds Price Land House View

* Sold properties shown for price comparison only. Prices reflect historical sale data.

Location Type Beds Rent/Month Land House View

* Rental prices shown are monthly rates. Contact property owner for current availability.