Back to results 3LDK Detached House for Sale in Takatsuki, Osaka

Verified Listing

This property was checked recently and confirmed to still be available. Tap for details.

Verified Listing

This property has been verified in the last month. Our system regularly checks listings to ensure they are still available.

Last verified: April 4, 2026

Know someone who would love this? Gift them a subscription

¥22,800,000

1-chome, Jonancho, Takatsuki City, Osaka Prefecture

大阪府高槻市城南町1丁目

Sign in to save properties

Work with our partners to help you search, evaluate, and purchase property in Japan.

Book a Consultation
Buy House Near School

Unlock the full description with a free trial

Includes AI translation, hazard data, cost estimates & nearby amenities

3 days free · cancel anytime

Start Free Trial

Detached House in Takatsuki City, Osaka

This property is a detached house located in Takatsuki City, Osaka Prefecture. It is situated within a 20-minute walk from Hankyu Takatsuki-shi Station on the Hankyu Kyoto Line, and a 23-minute walk from JR Takatsuki Station. The house is a custom-built home that makes use of natural materials.

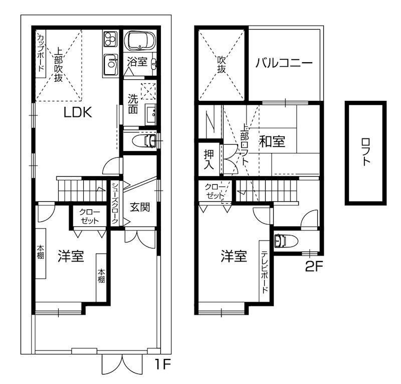
The property is a 3LDK layout with a total floor area of 76.16 square meters. It is a two-story wooden structure built in September 2003, making it 23 years old. The land area is 71.15 square meters. The property is currently vacant. The house features a system kitchen with a counter and an IH cooktop. The bathroom is equipped with a reheating function and a bath dryer. The washbasin vanity includes a shower. The toilet has a bidet seat. Interior features include a walk-in closet, storage in all rooms, a TV monitor-equipped door phone, and underfloor heating. The property is all-electric and barrier-free. It faces south. There is no dedicated parking space. Utilities include public water supply, city gas, sewer, and hot water supply equipment. The property uses city gas, which is noted as being relatively inexpensive and environmentally friendly.

The surrounding area offers convenient amenities. A bank is located within 145 meters (a 2-minute walk). Nearby facilities include a Sandy supermarket (291m), a Life supermarket (743m), and a Gyomu Super discount store (916m). Educational institutions in the vicinity are Takatsuki City Nishiohkan Kindergarten (397m), Takatsuki City Nishiohkan Elementary School (284m), and Takatsuki City Jonan Junior High School (591m). There is also a Takatsuki Jona Post Office (550m). The property is in a quiet location with no through traffic for vehicles.

This description was AI-generated from the original Japanese listing and may contain inaccuracies. Please verify details with the source listing.

Summary

Bedrooms: 3
Year built: 2003
Land size: 71 / 766sqft
House size: 76 / 820sqft

Short-Term Rental (Minpaku)

Transport

Nearest Konbini

sunkus Sunkus — 2 min walk

Internet Connectivity

Natural Hazard Assessment

Flood Risk Low Risk
Landslide Risk Moderate
Tsunami Risk Low Risk
Earthquake Hazard Moderate

Unlock hazard data with a free trial

Flood, landslide, tsunami & earthquake risk for this property

3 days free · cancel anytime

Start Free Trial

Purchase Cost & Tax Estimates

Agent fees, acquisition tax, registration costs & annual property tax

Airbnb Revenue Estimate

Projected nightly rate, occupancy & net income for this property

Investment ROI

Annual yield, break-even timeline & 10-year return projection

Map & Street View

Map loading...

Location Accuracy Notice: Although we try to make the map accurate with coordinates or address details provided, the location data is provided by the agent. This map data should be used as reference for the surrounding area foremost.

Location Type Beds Price Land House View

* Sold properties shown for price comparison only. Prices reflect historical sale data.

Location Type Beds Rent/Month Land House View

* Rental prices shown are monthly rates. Contact property owner for current availability.