Back to results Modern 3LDK Detached House for Sale in Otsu, Shiga
New Today
Modern 3LDK Detached House for Sale in Otsu, Shiga
¥35,700,000

Ohira 2-chome, Otsu City, Shiga Prefecture

滋賀県大津市大平2丁目

Buy Move-in Ready House New Build Parking Suburban Quiet Area

Know someone who would love this? Gift them a subscription

This property has more to show

Earthquake & flood hazard assessment
Purchase cost & tax estimates
Full AI-translated description

Trusted by property buyers worldwide

Start 3-Day Free Trial

$5/month after trial · Cancel anytime

Detached House in Otsu City, Shiga Prefecture

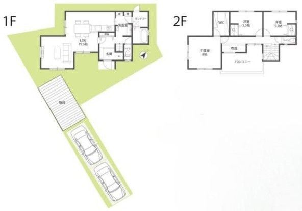
This detached house in Otsu City's Ohira 2-chome is a modern, two-story wooden structure built in October 2024, offering a move-in ready condition. The property features a 3LDK layout with a total floor area of 109.3 square meters, situated on a 130.31 square meter plot of land. The house is equipped with two car parking spaces and is designated for two-family residential use within a low-rise residential exclusive zone.

The property includes a comprehensive list of facilities and equipment. The gas type is city gas, water supply is public, and drainage is connected to the sewer system. Key features include two or more bathrooms, a walk-in closet, a reheating function for the bath, a shampoo dresser, a shower toilet, and a system kitchen. The flooring is throughout, and an intercom is installed. The design incorporates barrier-free elements. The bathroom is equipped with a ventilation dryer and a full-auto bath. The windows feature pair glass, and the balcony is south-facing. A counter is included, the stove is gas, and a dishwasher is installed. The bathroom has a window, and all living rooms are equipped with storage. Gas stoves and showers are also provided.

The location offers access to several daily amenities within walking distance, including convenience stores like Lawson and Ministop, supermarkets such as Fresco and Friend Mart, a drugstore, a post office, a bank, and kindergartens and nurseries. For transportation, the nearest major stations are JR Tokaido Main Line's Ishiyama Station (approximately 45 minutes on foot), Keihan Ishiyama Sakamoto Line's Ishiyamadera Station (approximately 32 minutes on foot), and Keihan Ishiyama Sakamoto Line's Karahashimae Station (approximately 41 minutes on foot). The property is in a quiet residential area with public road frontage.

This description was AI-generated from the original Japanese listing and may contain inaccuracies. Please verify details with the source listing.

Summary

Bedrooms: 3
Parking: 2
Year built: 2024
Land size: 130 / 1,403sqft
House size: 109 / 1,177sqft

Short-Term Rental (Minpaku)

Transport

ITM

Osaka International Airport — 46 km away

Nearest Konbini

family_mart Family Mart — 5 min walk

Internet Connectivity

Natural Hazard Assessment

Hazard data is a subscriber feature

Know the flood, landslide & tsunami risks before you buy

View Plans
¥35,700,000
Purchase Cost & Tax Estimates
Subscribe
Agent fee (3% + tax)¥000,000
Acquisition tax¥000,000
Registration & stamp¥000,000
Property tax (annual)¥00,000/yr
Subscribe to view cost & tax estimates →
Nightly Rate
Occupancy Rate
Max operating days/year
Est. booked nights/year
Gross annual revenue
Expenses breakdown
Cleaning
Platform fees (3%)
Management (20%)
Supplies
Insurance
Utilities
Total expenses
Net annual income
Monthly equivalent

Actual revenue varies by location, property quality, season, and management. Adjust sliders to model different scenarios.

Renovation Budget
Annual Rental Income

Auto-filled from Airbnb estimate

Purchase price
Renovation
Transaction costs
Total investment
Property tax
Insurance
Maintenance
Annual yield
Break-even
5-year return
10-year return
0 yr5101520+

Estimates only. Actual returns depend on rental demand, management quality, renovation scope, and market conditions. Adjust sliders to model scenarios.

Ohira 2-chome, Otsu City, Shiga Prefecture

滋賀県大津市大平2丁目

Get Started

Sign in to save properties

Map & Street View

Map loading...

Location Accuracy Notice: Although we try to make the map accurate with coordinates or address details provided, the location data is provided by the agent. This map data should be used as reference for the surrounding area foremost.

Location Type Beds Price Land House View

* Sold properties shown for price comparison only. Prices reflect historical sale data.

Location Type Beds Rent/Month Land House View

* Rental prices shown are monthly rates. Contact property owner for current availability.