Back to results New 4LDK House in Fujisawa, Kanagawa - Near Zenjo Station

Verified Listing

This property was checked recently and confirmed to still be available. Tap for details.

Verified Listing

This property has been verified in the last month. Our system regularly checks listings to ensure they are still available.

Last verified: April 1, 2026

Know someone who would love this? Gift them a subscription

¥43,800,000

Tateshi 1-chome, Fujisawa, Kanagawa Prefecture

神奈川県藤沢市立石1丁目

Sign in to save properties

Work with our partners to help you search, evaluate, and purchase property in Japan.

Book a Consultation
Buy Move-in Ready Garden House New Build Parking Suburban Quiet Area Beach Access

Unlock the full description with a free trial

Includes AI translation, hazard data, cost estimates & nearby amenities

3 days free · cancel anytime

Start Free Trial

New Build Detached House in Fujisawa, Kanagawa

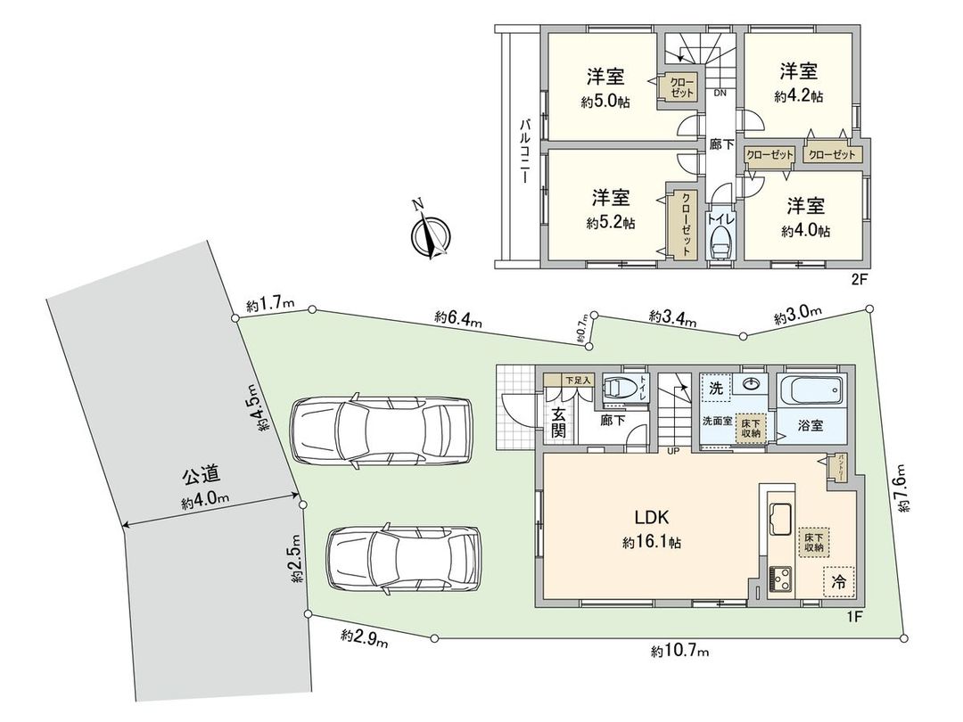
This newly constructed detached house, located in the Tateshi 1-chome district of Fujisawa City, Kanagawa, offers a modern 4LDK layout with a total floor area of 80.8 square meters (approximately 24.44 tsubo). The property is situated on a 100 square meter plot (approximately 30.25 tsubo), with an additional approximately 10 square meters of private road. The two-story wooden structure is scheduled for completion in February 2026 and is currently vacant.

Key features of the home include a bright and airy living-dining-kitchen (LDK) area with two-sided natural light, a living room staircase designed to foster family communication, and easy-to-clean flooring throughout all rooms. The well-equipped kitchen features a window and a built-in dishwasher. The property also includes a pantry, storage in every room, a windowed bathroom, a toilet with a bidet seat, a delivery box, and shutters for comfort and security. Energy efficiency is enhanced by the use of double-glazed windows for superior insulation, heat shielding, and condensation prevention. For convenience, a TV monitor intercom is installed. The property includes parking space for two vehicles (subject to vehicle type).

According to the agent's special notes, the property is located in an Article 22 zone / Land Readjustment Project Regulation Area. It is also important to note that the building area includes an approximately 1.24 square meter storage warehouse.

The location offers excellent daily convenience, with a Seven-Eleven store just a 4-minute walk away and the first Tateshi Park within a 4-minute walk. The property is a 13-minute walk from the Zenjo Station on the Odakyu Enoshima Line, providing direct access to the vibrant Shonan area. Fujisawa is a dynamic coastal city known for its beautiful beaches and as the home of the historic Enoshima Shrine, a popular tourist destination located on a small island connected to the mainland by a bridge. The area is a major hub for surfing and marine sports, blending modern living with rich cultural heritage.

This description was AI-generated from the original Japanese listing and may contain inaccuracies. Please verify details with the source listing.

Summary

Bedrooms: 4
Parking: 2
Year built: 2026
Land size: 100 / 1,076sqft
House size: 81 / 870sqft

Short-Term Rental (Minpaku)

Transport

HND

Haneda Airport — 34 km away

Nearby Konbini

Seven Eleven Seven Eleven — 4 min walk

Internet Connectivity

Natural Hazard Assessment

Flood Risk Low Risk
Landslide Risk Moderate
Tsunami Risk Low Risk
Earthquake Hazard Moderate

Unlock hazard data with a free trial

Flood, landslide, tsunami & earthquake risk for this property

3 days free · cancel anytime

Start Free Trial

Purchase Cost & Tax Estimates

Agent fees, acquisition tax, registration costs & annual property tax

Airbnb Revenue Estimate

Projected nightly rate, occupancy & net income for this property

Investment ROI

Annual yield, break-even timeline & 10-year return projection

Map & Street View

Map loading...

Location Accuracy Notice: Although we try to make the map accurate with coordinates or address details provided, the location data is provided by the agent. This map data should be used as reference for the surrounding area foremost.

Location Type Beds Price Land House View

* Sold properties shown for price comparison only. Prices reflect historical sale data.

Location Type Beds Rent/Month Land House View

* Rental prices shown are monthly rates. Contact property owner for current availability.