Back to results Traditional Farmhouse with Agricultural Land in Hikari City

Verified Listing

This property was checked recently and confirmed to still be available. Tap for details.

Verified Listing

This property has been verified in the last month. Our system regularly checks listings to ensure they are still available.

Last verified: April 15, 2026

Contact Agent

Shiota, Hikari City, Yamaguchi Prefecture

山口県光市大字塩田

Buy Traditional House Farmhouse Renovation Project House Akiya Bank Gas Heating/Cooking Rice Field Well Water Septic System Rural

Know someone who would love this? Gift them a subscription

This property has more to show

Earthquake & flood hazard assessment
Purchase cost & tax estimates
Full AI-translated description

Trusted by property buyers worldwide

Start 3-Day Free Trial

$5/month after trial · Cancel anytime

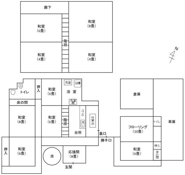
Located in Shiota, Hikari City, Yamaguchi Prefecture, this traditional wooden house offers a unique blend of rural living and agricultural opportunities. Built in 1954, this spacious two-story property features a generous 267.36 square meters of living space with a practical 10DK layout. The property includes 540.73 square meters of land, including agricultural land that overlooks picturesque rice fields below.

The house requires some renovation work, particularly to the bathroom, floors, ceiling, and septic system. It comes with essential amenities including well water and propane gas. While the building is unregistered, it presents an opportunity for those seeking a countryside lifestyle with farming possibilities.

Situated near Iwata Station on the JR Sanyo Main Line, the property benefits from Hikari City's excellent climate, boasting some of Japan's highest sunshine hours. The area is known for its harmonious balance of mountains, rivers, and seaside, making it an attractive location for those seeking a peaceful rural lifestyle with convenient access to urban amenities.

This description was AI-generated from the original Japanese listing and may contain inaccuracies. Please verify details with the source listing.

Summary

Year built: 1954
Land size: 541 / 5,820sqft
House size: 267 / 2,878sqft

Short-Term Rental (Minpaku)

Transport

Nearby Konbini

Seven Eleven Seven Eleven — 49 min walk

Internet Connectivity

Natural Hazard Assessment

Hazard data is a subscriber feature

Know the flood, landslide & tsunami risks before you buy

View Plans
Negotiable

Shiota, Hikari City, Yamaguchi Prefecture

山口県光市大字塩田

Get Started

Sign in to save properties

Map & Street View

Map loading...

Location Accuracy Notice: Although we try to make the map accurate with coordinates or address details provided, the location data is provided by the agent. This map data should be used as reference for the surrounding area foremost.

Location Type Beds Price Land House View

* Sold properties shown for price comparison only. Prices reflect historical sale data.

Location Type Beds Rent/Month Land House View

* Rental prices shown are monthly rates. Contact property owner for current availability.