Back to results 4DK Family House with Parking in Yamaguchi City
Marked sold 3 days ago
¥6,400,000

Fukuzo, Yamaguchi City, Yamaguchi Prefecture

山口県山口市深溝

Sold House Gas Heating/Cooking

Know someone who would love this? Gift them a subscription

This property has more to show

Earthquake & flood hazard assessment
Purchase cost & tax estimates
Full AI-translated description

Trusted by property buyers worldwide

Start 3-Day Free Trial

$5/month after trial · Cancel anytime

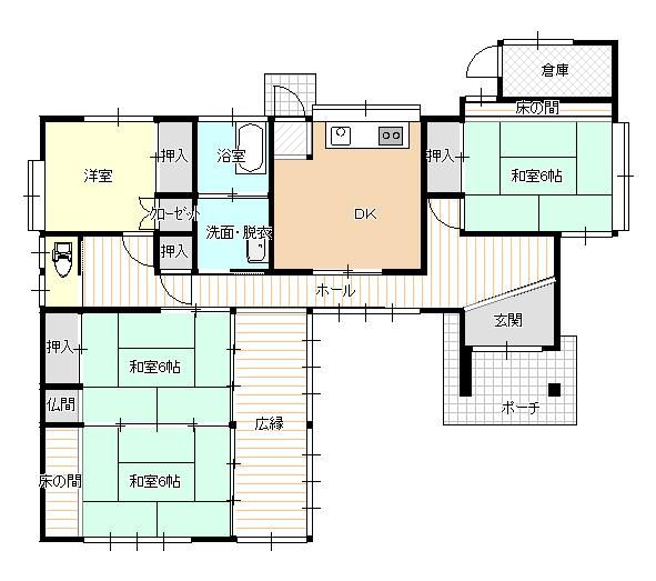
Spacious Family Home in Yamaguchi City

This charming single-family home in Yamaguchi City offers a generous living space with a 4DK layout spread across 115.16 square meters. Built in December 1974, the wooden structure sits on a substantial 521.70 square meter plot, providing ample outdoor space and privacy. The property features propane gas utilities and separate bathroom and toilet facilities with a washbasin.

The property includes significant practical benefits: parking for three vehicles at no additional cost. Special arrangements have been made by the seller, including bearing the costs for boundary point installation, building title registration changes, and the planned sewer installation on the front road during the 2025 fiscal year (with the beneficiary burden covered by the seller). Additionally, the seller will handle the dismantling of the storage shed and backfilling of the well.

Located just a 4-minute walk from Fukuzo Station on the Ube Line, this home offers excellent transportation access. Yamaguchi City is rich with cultural heritage, with the iconic Ruriko-ji Temple and its five-story pagoda serving as a major landmark. The area combines urban convenience with natural beauty, nestled in the scenic Chugoku region of Japan.

This description was AI-generated from the original Japanese listing and may contain inaccuracies. Please verify details with the source listing.

Summary

Bedrooms: 4
Parking: 3
Year built: 1974
Land size: 522 / 5,616sqft
House size: 115 / 1,240sqft

Short-Term Rental (Minpaku)

Transport

FUK

Fukuoka Airport — 99 km away

Nearby Konbini

Lawson Lawson — 15 min walk
Poplar Poplar — 31 min walk
Seven Eleven Seven Eleven — 35 min walk

Internet Connectivity

Natural Hazard Assessment

Hazard data is a subscriber feature

Know the flood, landslide & tsunami risks before you buy

View Plans
¥6,400,000

Fukuzo, Yamaguchi City, Yamaguchi Prefecture

山口県山口市深溝

Get Started

Sign in to save properties

Map & Street View

Map loading...

Location Accuracy Notice: Although we try to make the map accurate with coordinates or address details provided, the location data is provided by the agent. This map data should be used as reference for the surrounding area foremost.

Location Type Beds Price Land House View

* Sold properties shown for price comparison only. Prices reflect historical sale data.

Location Type Beds Rent/Month Land House View

* Rental prices shown are monthly rates. Contact property owner for current availability.