Verified Listing

This property was checked recently and confirmed to still be available. Tap for details.

Verified Listing

This property has been verified in the last three months. Our system regularly checks listings to ensure they are still available.

Last verified: December 24, 2025

Buy House Akiya Bank Rural Large Property Renovation Project

Spacious Detached House in the Scenic Hills of Hatsukaichi, Hiroshima

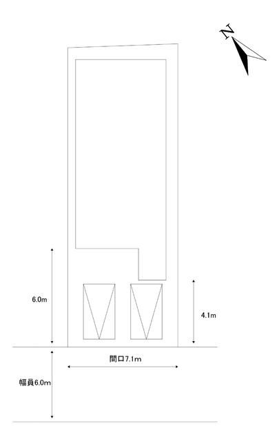
This detached house, built in October 2005, offers a generous living space of 104.95 square meters (approximately 31.74 tsubo) arranged in a comfortable 3LDK layout. The property stands on a substantial plot of land measuring 335.00 square meters (approximately 101.33 tsubo), providing ample outdoor space and privacy. The structure is a two-story wooden building located outside the urban planning area, offering a peaceful residential environment.

Critical details from the agent's notes include the road access situation: the property fronts a single road to the south. This road is a private road with a width of 4 meters, and the property's frontage along it measures 12 meters. The land itself is on a slope, which contributes to its character. The property is designated as an akiya (vacant house) and is available for purchase.

The area of Hatsukaichi City in Hiroshima Prefecture is renowned for its natural beauty and cultural significance. It is home to the iconic Itsukushima Shrine, a UNESCO World Heritage site located on the nearby island of Miyajima, famous for its "floating" torii gate. The property's location offers a serene lifestyle while remaining within reach of major attractions and amenities.

Summary

Bedrooms: 3
Year built: 2005
Land size: 335mยฒ / 3,606sqft
House size: 105mยฒ / 1,130sqft

Closest International Airport:

Fukuoka Airport (FUK) - 183 km away

ยฅ9,500,000

Yoshiwa, Hatsukaichi City, Hiroshima Prefecture

ๅบƒๅณถ็œŒๅปฟๆ—ฅๅธ‚ๅธ‚ๅ‰ๅ’Œ

Get Started

Sign in to save properties

View Original Listing: Requires subscription. Japanese language usually needed.

Get Started: Book an intro call to begin your property search with an English-speaking broker.

Map & Street View

Map loading...

Location Accuracy Notice: Although we try to make the map accurate with coordinates or address details provided, the location data is provided by the agent. This map data should be used as reference for the surrounding area foremost.

Similar Properties

Higashihiroshima, Hiroshima Prefecture

Buy House Traditional House Renovation Project Large Property House Akiya Bank Rural
5
397mยฒ
92mยฒ
seven_eleven convenience store Seven Eleven - 4 min walk

Fuchu, Hiroshima Prefecture

Buy House Renovation Project Large Property House Akiya Bank Parking Rural
3
142mยฒ
122mยฒ
family_mart convenience store Family Mart - 7 min walk

Kure, Hiroshima Prefecture

Buy House Mountain Property Renovation Project Large Property House Akiya Bank Rural
2
197mยฒ
57mยฒ
lawson convenience store Lawson - 8 min walk

Fukuyama, Hiroshima Prefecture

Buy House Renovation Project Large Property Near Station House Akiya Bank Parking Rural
7
267mยฒ
184mยฒ
seven_eleven convenience store Seven Eleven - 16 min walk

Fukuyama, Hiroshima Prefecture

Buy House Traditional House Renovation Project Land Only Large Property Garden House Akiya Bank Rural
5
742mยฒ
117mยฒ
seven_eleven convenience store Seven Eleven - 2 min walk

Higashihiroshima, Hiroshima Prefecture

Rental House Move-in Ready Large Property Near Station House Akiya Bank Corner Lot Gas Heating/Cooking Parking Rural Quiet Area
7
503mยฒ
199mยฒ
seven_eleven convenience store Seven Eleven - 1 min walk

8 views left

Subscribe for unlimited access

Subscribe