Back to results New 4LDK House in Hiroshima Nishi Ward with Sea Views
Added 5 days ago
¥41,500,000

4-chome, Iguchi, Nishi Ward, Hiroshima City, Hiroshima Prefecture

広島県広島市西区井口4丁目

Buy Move-in Ready House New Build Modern House Ocean View

Know someone who would love this? Gift them a subscription

This property has more to show

Earthquake & flood hazard assessment
Purchase cost & tax estimates
Full AI-translated description

Trusted by property buyers worldwide

Start 3-Day Free Trial

$5/month after trial · Cancel anytime

Modern Detached House in Hiroshima's Saeki Ward with Seto Inland Sea Views

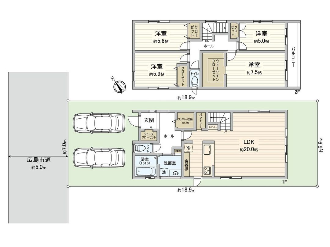
This property is a newly completed, never-occupied detached house built in April 2024. It is an all-electric home featuring a spacious 4LDK layout with a living-dining-kitchen area of approximately 20 tatami mats. The house incorporates numerous Panasonic products, including the kitchen, unit bath, toilet, doors, and flooring materials.

The kitchen is a conversation-friendly facing type, equipped with a touchless faucet. Storage capacity is exceptionally ample, featuring a shoe closet, family storage, a pantry, and a dish cupboard. The washroom includes movable shelves convenient for storing towels and clothing. The balcony faces southeast, ensuring good sunlight within the rooms. The south side of the property is terraced, providing excellent views, sunlight, and ventilation. From the second floor, views of the Seto Inland Sea can be enjoyed.

The property is located in a First Category Low-Rise Residential Exclusive Zone. It is within walking distance of public transport, with a 12-minute walk to Shudai Kyoso Chukomae Station on the Hiroshima Electric Railway Miyajima Line and an 18-minute walk to Itsukaichi Station on the Sanyo Main Line. Nearby amenities include a Seven-Eleven convenience store (approx. 750m, 10 min walk) and the MaxValu Express Fujisuen supermarket (approx. 1270m, 16 min walk).

This description was AI-generated from the original Japanese listing and may contain inaccuracies. Please verify details with the source listing.

Summary

Bedrooms: 4
Year built: 2024
Land size: 149 / 1,599sqft
House size: 113 / 1,214sqft

Short-Term Rental (Minpaku)

Transport

FUK

Fukuoka Airport — 198 km away

Nearest Konbini

family_mart Family Mart — 8 min walk

Internet Connectivity

Natural Hazard Assessment

Hazard data is a subscriber feature

Know the flood, landslide & tsunami risks before you buy

View Plans
¥41,500,000
Purchase Cost & Tax Estimates
Subscribe
Agent fee (3% + tax)¥000,000
Acquisition tax¥000,000
Registration & stamp¥000,000
Property tax (annual)¥00,000/yr
Subscribe to view cost & tax estimates →
Nightly Rate
Occupancy Rate
Max operating days/year
Est. booked nights/year
Gross annual revenue
Expenses breakdown
Cleaning
Platform fees (3%)
Management (20%)
Supplies
Insurance
Utilities
Total expenses
Net annual income
Monthly equivalent

Actual revenue varies by location, property quality, season, and management. Adjust sliders to model different scenarios.

Renovation Budget
Annual Rental Income

Auto-filled from Airbnb estimate

Purchase price
Renovation
Transaction costs
Total investment
Property tax
Insurance
Maintenance
Annual yield
Break-even
5-year return
10-year return
0 yr5101520+

Estimates only. Actual returns depend on rental demand, management quality, renovation scope, and market conditions. Adjust sliders to model scenarios.

4-chome, Iguchi, Nishi Ward, Hiroshima City, Hiroshima Prefecture

広島県広島市西区井口4丁目

Get Started

Sign in to save properties

Map & Street View

Map loading...

Location Accuracy Notice: Although we try to make the map accurate with coordinates or address details provided, the location data is provided by the agent. This map data should be used as reference for the surrounding area foremost.

Location Type Beds Price Land House View

* Sold properties shown for price comparison only. Prices reflect historical sale data.

Location Type Beds Rent/Month Land House View

* Rental prices shown are monthly rates. Contact property owner for current availability.