Back to results 3LDK Investment Building for Sale in Hino, Tokyo

Verified Listing

This property was checked recently and confirmed to still be available. Tap for details.

Verified Listing

This property has been verified in the last month. Our system regularly checks listings to ensure they are still available.

Last verified: March 31, 2026

Know someone who would love this? Gift them a subscription

¥77,800,000

Hinodai 2-chome, Hino City, Tokyo

東京都日野市日野台2丁目

Sign in to save properties

Work with our partners to help you search, evaluate, and purchase property in Japan.

Book a Consultation
Buy Business Move-in Ready Near Station House Apartment Land Suburban Sanrio Puroland

Unlock the full description with a free trial

Includes AI translation, hazard data, cost estimates & nearby amenities

3 days free · cancel anytime

Start Free Trial

Investment Building in Hino, Tokyo

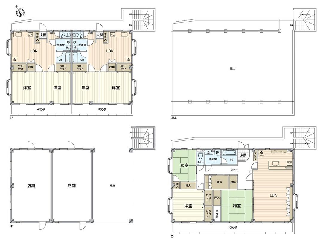
This property is a three-story building located in Hino City, Tokyo, offering a significant investment opportunity. The building has a total floor area of 298.1 sqm (approximately 90.17 tsubo) and sits on a land area of 206.28 sqm (approximately 62.39 tsubo). It was built in January 2000 and features a 3LDK layout. The structure is steel-framed and is situated in a Category II Medium-to-High-Rise Residential Exclusive Zone, facing a road over 6 meters wide.

Critical agent notes provide essential financial details. The property is currently tenanted, and the lease agreement is to be transferred to the new owner. The estimated annual rental income at full occupancy is 6,120,000 yen, which, against the asking price of 77.8 million yen, yields a projected yield of 7.8%. It is crucial to note that this yield calculation is based on the annual rental income (including common area fees) relative to the sale price, before deducting taxes, public charges, and other necessary maintenance costs for the property. Furthermore, the estimated rent and yield are calculated based on market rent, adding rent for any vacant spaces to assume full occupancy. Importantly, rental income is not guaranteed to be reliably obtained in the future. (Survey date: March 30, 2025).

This description was AI-generated from the original Japanese listing and may contain inaccuracies. Please verify details with the source listing.

Summary

Bedrooms: 3
Year built: 2000
Land size: 206 / 2,220sqft
House size: 298 / 3,209sqft

Short-Term Rental (Minpaku)

Transport

HND

Haneda Airport — 39 km away

Nearby Konbini

Seven Eleven Seven Eleven — 2 min walk

Internet Connectivity

Natural Hazard Assessment

Flood Risk Low Risk
Landslide Risk Moderate
Tsunami Risk Low Risk
Earthquake Hazard Moderate

Unlock hazard data with a free trial

Flood, landslide, tsunami & earthquake risk for this property

3 days free · cancel anytime

Start Free Trial

Purchase Cost & Tax Estimates

Agent fees, acquisition tax, registration costs & annual property tax

Airbnb Revenue Estimate

Projected nightly rate, occupancy & net income for this property

Investment ROI

Annual yield, break-even timeline & 10-year return projection

Map & Street View

Map loading...

Location Accuracy Notice: Although we try to make the map accurate with coordinates or address details provided, the location data is provided by the agent. This map data should be used as reference for the surrounding area foremost.

Location Type Beds Price Land House View

* Sold properties shown for price comparison only. Prices reflect historical sale data.

Location Type Beds Rent/Month Land House View

* Rental prices shown are monthly rates. Contact property owner for current availability.