Back to results 1903 Historic House for Sale in Matsuzaki, Shizuoka with Mountain Land

Needs Verification

This listing hasn't been verified recently. Tap to request a priority check!

¥26,800,000

Kumomi, Matsuzaki Town, Kamo District, Shizuoka Prefecture

静岡県賀茂郡松崎町雲見

Buy Traditional House House Akiya Bank Corner Lot Needs Renovation Rural Historic

Know someone who would love this? Gift them a subscription

This property has more to show

Earthquake & flood hazard assessment
Purchase cost & tax estimates
Full AI-translated description

Trusted by property buyers worldwide

Start 3-Day Free Trial

$5/month after trial · Cancel anytime

Historic 1903 Home with Mountain Land in Matsuzaki Town

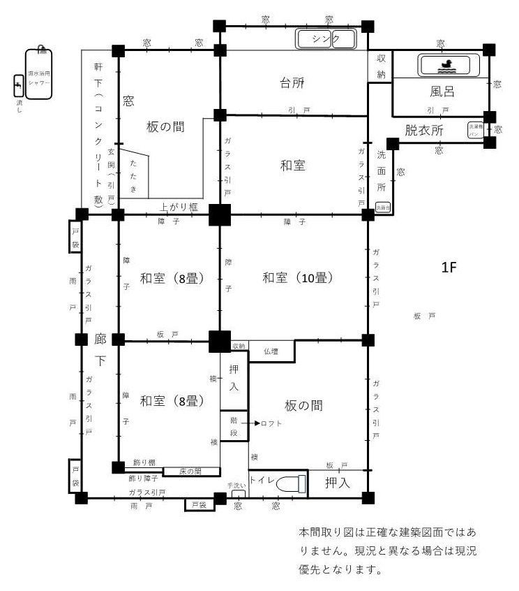
This unique property, listed as "Vacant House Bank Property B00321-000016," is a historic detached house for sale in the serene residential area of Kumomi, Matsuzaki Town, Shizuoka Prefecture. Built in January 1903, this 123-year-old wooden structure offers a rare opportunity to own a piece of history with significant land. The house itself has a total floor area of 124.92 square meters, situated on a spacious 651.22 square meter corner plot. The layout is a spacious 5DK, providing ample room for living. The property includes two parking spaces and faces south, ensuring good sunlight. Utilities include city gas, and the home features a system kitchen, two toilets (one with a reheating function), and a monitor-equipped intercom system. The listing notes that some repair work is required, and further details can be obtained by contacting the town office via the inquiry form at the bottom of the page.

A particularly notable feature of this property is the inclusion of a mountain lot adjacent to the east side of the land. This additional plot has a registered area of 491.36 square meters, offering potential for gardening, nature appreciation, or future expansion, significantly enhancing the property's value and charm. The home is described as suitable for multi-generational living, making it an ideal project for a family seeking a quiet retreat with character.

Matsuzaki Town is located on the picturesque Izu Peninsula, an area renowned for its dramatic coastline, hot springs, and citrus orchards. The region is a popular getaway for residents of Tokyo and Yokohama, drawn to its relaxed pace and natural beauty. A major landmark near the town is the stunning Jogasaki Coast, a volcanic coastline featuring suspension bridges and hiking trails with breathtaking ocean views. This property offers a chance to immerse oneself in the tranquil, nature-rich lifestyle of the Izu region while restoring a home full of potential.

This description was AI-generated from the original Japanese listing and may contain inaccuracies. Please verify details with the source listing.

Summary

Bedrooms: 5
Parking: 2
Year built: 1903
Land size: 651 / 7,010sqft
House size: 125 / 1,345sqft

Short-Term Rental (Minpaku)

Transport

HND

Haneda Airport — 131 km away

Nearest Konbini

circle_k Circle K — 50 min walk

Internet Connectivity

Natural Hazard Assessment

Hazard data is a subscriber feature

Know the flood, landslide & tsunami risks before you buy

View Plans
¥26,800,000
Purchase Cost & Tax Estimates
Subscribe
Agent fee (3% + tax)¥000,000
Acquisition tax¥000,000
Registration & stamp¥000,000
Property tax (annual)¥00,000/yr
Subscribe to view cost & tax estimates →
Nightly Rate
Occupancy Rate
Max operating days/year
Est. booked nights/year
Gross annual revenue
Expenses breakdown
Cleaning
Platform fees (3%)
Management (20%)
Supplies
Insurance
Utilities
Total expenses
Net annual income
Monthly equivalent

Actual revenue varies by location, property quality, season, and management. Adjust sliders to model different scenarios.

Renovation Budget
Annual Rental Income

Auto-filled from Airbnb estimate

Purchase price
Renovation
Transaction costs
Total investment
Property tax
Insurance
Maintenance
Annual yield
Break-even
5-year return
10-year return
0 yr5101520+

Estimates only. Actual returns depend on rental demand, management quality, renovation scope, and market conditions. Adjust sliders to model scenarios.

Kumomi, Matsuzaki Town, Kamo District, Shizuoka Prefecture

静岡県賀茂郡松崎町雲見

Get Started

Sign in to save properties

Map & Street View

Map loading...

Location Accuracy Notice: Although we try to make the map accurate with coordinates or address details provided, the location data is provided by the agent. This map data should be used as reference for the surrounding area foremost.

Location Type Beds Price Land House View

* Sold properties shown for price comparison only. Prices reflect historical sale data.

Location Type Beds Rent/Month Land House View

* Rental prices shown are monthly rates. Contact property owner for current availability.