Back to results New 3LDK House in Nagakute, Aichi | Near Fujigaoka Station
Added 5 days ago
¥53,900,000

Sakuta 1-chome, Nagakute City, Aichi Prefecture

愛知県長久手市作田1丁目

Buy Move-in Ready Near Station House New Build Suburban Quiet Area Ghibli Park Stadium

Know someone who would love this? Gift them a subscription

This property has more to show

Earthquake & flood hazard assessment
Purchase cost & tax estimates
Full AI-translated description

Trusted by property buyers worldwide

Start 3-Day Free Trial

$5/month after trial · Cancel anytime

New Construction Detached House in Nagakute, Aichi Prefecture

This newly built detached house is located in Nagakute City, Aichi Prefecture, within the Sakuta 1-chome neighborhood. The property is scheduled for completion in May 2026, with handover expected from late June 2026 onwards.

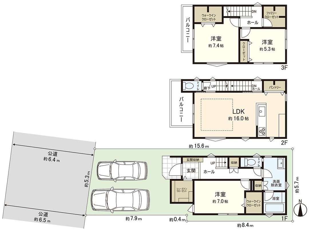
The house offers a 3LDK layout with a total building area of 105.19 sqm (approximately 31.81 tsubo) on a land plot of 88.76 sqm (approximately 26.84 tsubo). It is a three-story wooden structure built to Quasi-Fireproof standards and has achieved Seismic Grade 3 for enhanced safety. The property faces a public road approximately 6.4 meters wide on the west side, which allows for parking for two vehicles (subject to vehicle type). The building comes with a maximum 35-year new construction warranty.

Key features of the interior include a bright and well-ventilated approximately 16-jo LDK (living-dining-kitchen) with south-facing windows. Two Western-style rooms, approximately 7.4-jo and 7-jo in size, offer ample storage, including a walk-in closet. Each bedroom is conveniently adjacent to a closet for easy organization. The kitchen is a facing-counter style.

Equipment and amenities include a built-in dishwasher, bathroom dryer, heated toilet seat with bidet function, IC card locking system, electric shutters in the living room, a delivery box (POS), lighting fixtures in all rooms, and a TV monitor intercom.

The location is highly convenient, with Fujigaoka Station on the Nagoya Municipal Subway Higashiyama Line a 10-minute walk away and the Linimo station a 9-minute walk away, providing access to two rail lines. Daily necessities are within easy reach: MaxValu Fujigaoka store is about 670m away (a 9-minute walk), and several drugstores and convenience stores are within walking distance. The area is also family-friendly, with Nishi Elementary School approximately 740m away (a 10-minute walk). For recreation, Takaragooka Park is about 420m away and Nakasakuta Park is about 160m away, offering green spaces.

This description was AI-generated from the original Japanese listing and may contain inaccuracies. Please verify details with the source listing.

Summary

Bedrooms: 3
Parking: 2
Year built: 2026
Land size: 89 / 955sqft
House size: 105 / 1,132sqft

Short-Term Rental (Minpaku)

Transport

Nearest Konbini

sunkus Sunkus — 3 min walk

Internet Connectivity

Natural Hazard Assessment

Hazard data is a subscriber feature

Know the flood, landslide & tsunami risks before you buy

View Plans
¥53,900,000
Purchase Cost & Tax Estimates
Subscribe
Agent fee (3% + tax)¥000,000
Acquisition tax¥000,000
Registration & stamp¥000,000
Property tax (annual)¥00,000/yr
Subscribe to view cost & tax estimates →
Nightly Rate
Occupancy Rate
Max operating days/year
Est. booked nights/year
Gross annual revenue
Expenses breakdown
Cleaning
Platform fees (3%)
Management (20%)
Supplies
Insurance
Utilities
Total expenses
Net annual income
Monthly equivalent

Actual revenue varies by location, property quality, season, and management. Adjust sliders to model different scenarios.

Renovation Budget
Annual Rental Income

Auto-filled from Airbnb estimate

Purchase price
Renovation
Transaction costs
Total investment
Property tax
Insurance
Maintenance
Annual yield
Break-even
5-year return
10-year return
0 yr5101520+

Estimates only. Actual returns depend on rental demand, management quality, renovation scope, and market conditions. Adjust sliders to model scenarios.

Sakuta 1-chome, Nagakute City, Aichi Prefecture

愛知県長久手市作田1丁目

Get Started

Sign in to save properties

Map & Street View

Map loading...

Location Accuracy Notice: Although we try to make the map accurate with coordinates or address details provided, the location data is provided by the agent. This map data should be used as reference for the surrounding area foremost.

Location Type Beds Price Land House View

* Sold properties shown for price comparison only. Prices reflect historical sale data.

Location Type Beds Rent/Month Land House View

* Rental prices shown are monthly rates. Contact property owner for current availability.