Back to results 144m² Land Plot in Rikuzentakata - Prime Residential Location

Verified Listing

This property was checked recently and confirmed to still be available. Tap for details.

Verified Listing

This property has been verified in the last month. Our system regularly checks listings to ensure they are still available.

Last verified: April 8, 2026

Contact Agent

Takata-cho, Morinomae, Rikuzentakata City, Iwate Prefecture

岩手県 陸前高田市 高田町字森の前

Rent Land Akiya Bank Quiet Area

Know someone who would love this? Gift them a subscription

This property has more to show

Earthquake & flood hazard assessment
Purchase cost & tax estimates
Full AI-translated description

Trusted by property buyers worldwide

Start 3-Day Free Trial

$5/month after trial · Cancel anytime

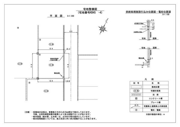
Located in Takata-cho, Morinomae, Rikuzentakata City, Iwate Prefecture, this vacant plot presents an excellent opportunity for development. The 144-square-meter land is situated in a Type 1 residential zone, offering flexible building options with a 60% building coverage ratio and 200% floor area ratio.

The property is currently undergoing land readjustment projects and is designated as a temporary replotting area (KB45 Block, Plot 4). Its location near the BRT Rikuzentakata Station on the JR Ofunato Line ensures convenient transportation access.

Rikuzentakata City enjoys a relatively mild climate throughout the year due to its geographical position and oceanic influences. The area has seen significant redevelopment, including seawall construction and land elevation projects. The nearby Miracle Pine Tree and Takata-Matsubara Road Station have become new attractions, contributing to the area's revival and growing community.

This description was AI-generated from the original Japanese listing and may contain inaccuracies. Please verify details with the source listing.

Summary

Land size: 144 / 1,550sqft

Short-Term Rental (Minpaku)

Transport

NRT

Narita International Airport — 377 km away

Nearby Konbini

Family Mart Family Mart — 22 min walk
Lawson Lawson — 22 min walk

Internet Connectivity

Natural Hazard Assessment

Hazard data is a subscriber feature

Know the flood, landslide & tsunami risks before you buy

View Plans
Negotiable

Takata-cho, Morinomae, Rikuzentakata City, Iwate Prefecture

岩手県 陸前高田市 高田町字森の前

Sign in to save properties

How It Works

1

Search - Browse properties across Japan

2

Save - Add favorites to your list

3

Contact Teritoru - Click "Get Started" above. Teritoru is our broker partner who will help you contact the selling agent or seller.

Teritoru handles all communication with Japanese agencies on your behalf in English.

Map & Street View

Map loading...

Location Accuracy Notice: Although we try to make the map accurate with coordinates or address details provided, the location data is provided by the agent. This map data should be used as reference for the surrounding area foremost.

Location Type Beds Price Land House View

* Sold properties shown for price comparison only. Prices reflect historical sale data.

Location Type Beds Rent/Month Land House View

* Rental prices shown are monthly rates. Contact property owner for current availability.