Back to results Shop with Residence for Sale in Uji, Kyoto - 3K House

Needs Verification

This listing hasn't been verified recently. Tap to request a priority check!

Know someone who would love this? Gift them a subscription

¥25,800,000

Shimmei, Uji City, Kyoto Prefecture

京都府宇治市神明

Sign in to save properties

Work with our partners to help you search, evaluate, and purchase property in Japan.

Book a Consultation
Buy House Renovated Quiet Area Temple Nearby

Unlock the full description with a free trial

Includes AI translation, hazard data, cost estimates & nearby amenities

3 days free · cancel anytime

Start Free Trial

Shop with Residence in Uji, Kyoto

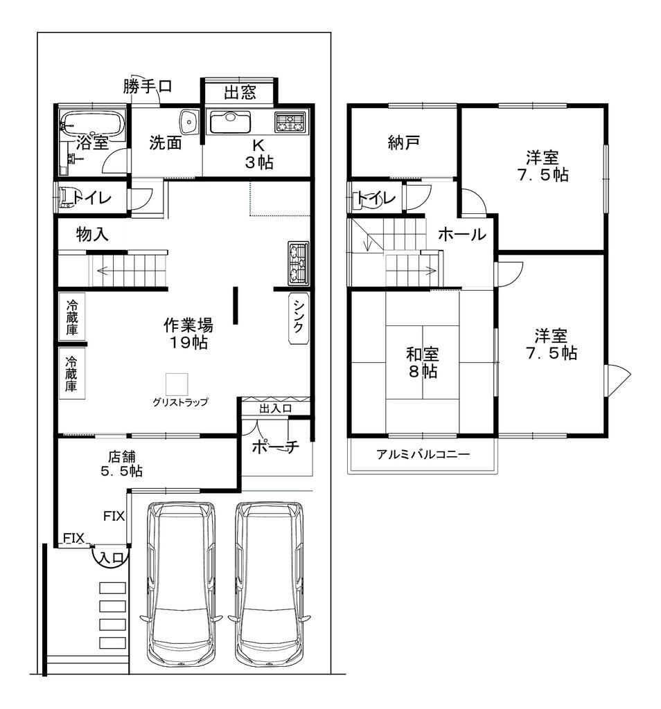
The property is currently occupied. If you wish to see it in person, please feel free to contact us with your preferred date for a free viewing. This two-story wooden house, built in December 1997, offers a total floor area of 112.21 sqm on a 115.96 sqm plot. The layout is designated as 3K, comprising the commercial space on the first floor and the living quarters on the second. It is situated in a quiet residential area within Uji City, a location famed for its high-quality matcha green tea and rich history. A major landmark just a short distance away is the UNESCO World Heritage site, Byodo-in Temple, an 11th-century Buddhist temple featured on the Japanese 10-yen coin, renowned for its stunning Phoenix Hall architecture.

This description was AI-generated from the original Japanese listing and may contain inaccuracies. Please verify details with the source listing.

Summary

Bedrooms: 3
Year built: 1997
Land size: 116 / 1,248sqft
House size: 112 / 1,208sqft

Short-Term Rental (Minpaku)

Transport

ITM

Osaka International Airport — 34 km away

Nearest Konbini

circle_k Circle K — 5 min walk

Internet Connectivity

Natural Hazard Assessment

Flood Risk Low Risk
Landslide Risk Moderate
Tsunami Risk Low Risk
Earthquake Hazard Moderate

Unlock hazard data with a free trial

Flood, landslide, tsunami & earthquake risk for this property

3 days free · cancel anytime

Start Free Trial

Purchase Cost & Tax Estimates

Agent fees, acquisition tax, registration costs & annual property tax

Airbnb Revenue Estimate

Projected nightly rate, occupancy & net income for this property

Investment ROI

Annual yield, break-even timeline & 10-year return projection

Map & Street View

Map loading...

Location Accuracy Notice: Although we try to make the map accurate with coordinates or address details provided, the location data is provided by the agent. This map data should be used as reference for the surrounding area foremost.

Location Type Beds Price Land House View

* Sold properties shown for price comparison only. Prices reflect historical sale data.

Location Type Beds Rent/Month Land House View

* Rental prices shown are monthly rates. Contact property owner for current availability.