Back to results 11LDK Detached House for Sale in Nara City with Panoramic Views

Verified Listing

This property was checked recently and confirmed to still be available. Tap for details.

Verified Listing

This property has been verified in the last month. Our system regularly checks listings to ensure they are still available.

Last verified: April 7, 2026

Know someone who would love this? Gift them a subscription

¥75,000,000

1934-10 Horen-cho, Nara City, Nara Prefecture

奈良県奈良市法蓮町1934番地10

Sign in to save properties

Work with our partners to help you search, evaluate, and purchase property in Japan.

Book a Consultation
Buy Near Station House Panoramic View Large Garden Quiet Area Eco Friendly

Unlock the full description with a free trial

Includes AI translation, hazard data, cost estimates & nearby amenities

3 days free · cancel anytime

Start Free Trial

Spacious 11LDK Detached House in Nara City with Panoramic Views

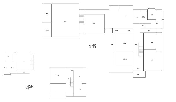
This substantial property, located in Nara City's Horen-cho district, offers a rare opportunity to acquire a large-scale family home. The house features an expansive 11LDK layout across two stories, providing a total floor area of 228.52 square meters on a generous 714.77 square meter plot of land. Built in October 1975, the property is situated in a highland area, offering excellent views of the surrounding landscape, including sights such as Mount Wakakusa.

The property is equipped with a comprehensive range of modern amenities. The kitchen is a system kitchen with a counter and features an IH cooktop. The bathroom includes a reheating function and a bath dryer, while the washbasin vanity has a shower attachment. The toilet is equipped with a bidet seat. Inside, the home benefits from a walk-in closet, storage in all rooms, a TV monitor-equipped doorphone, and underfloor heating. Key features of the property include all-electric power, barrier-free design, a south-facing orientation, and on-site parking.

Access is convenient, located approximately a 17-minute walk from Shindai-Omiya Station on the Kintetsu Namba/Nara Line. The property is currently occupied, and viewings are possible during the day. The land is registered as residential land within a City Planning Act urbanization control area. The property has an extension and is located within a scenic preservation district. The road frontage is on two sides: a 2.6-meter public road to the south and a 4.4-meter private road to the north, with a private road burden area of 4.40 square meters.

This description was AI-generated from the original Japanese listing and may contain inaccuracies. Please verify details with the source listing.

Summary

Bedrooms: 11
Parking: 1
Year built: 1975
Land size: 715 / 7,694sqft
House size: 229 / 2,460sqft

Short-Term Rental (Minpaku)

Transport

ITM

Osaka International Airport — 37 km away

Nearest Konbini

lawson Lawson — 5 min walk

Internet Connectivity

Natural Hazard Assessment

Flood Risk Low Risk
Landslide Risk Moderate
Tsunami Risk Low Risk
Earthquake Hazard Moderate

Unlock hazard data with a free trial

Flood, landslide, tsunami & earthquake risk for this property

3 days free · cancel anytime

Start Free Trial

Purchase Cost & Tax Estimates

Agent fees, acquisition tax, registration costs & annual property tax

Airbnb Revenue Estimate

Projected nightly rate, occupancy & net income for this property

Investment ROI

Annual yield, break-even timeline & 10-year return projection

Map & Street View

Map loading...

Location Accuracy Notice: Although we try to make the map accurate with coordinates or address details provided, the location data is provided by the agent. This map data should be used as reference for the surrounding area foremost.

Location Type Beds Price Land House View

* Sold properties shown for price comparison only. Prices reflect historical sale data.

Location Type Beds Rent/Month Land House View

* Rental prices shown are monthly rates. Contact property owner for current availability.