Back to results Two-Generation House for Sale in Itabashi, Tokyo - 3SLDK

Needs Verification

This listing hasn't been verified recently. Tap to request a priority check!

Know someone who would love this? Gift them a subscription

¥135,000,000

Akatsuka 3-chome, Itabashi Ward, Tokyo

東京都板橋区赤塚3丁目

Sign in to save properties

Work with our partners to help you search, evaluate, and purchase property in Japan.

Book a Consultation
Buy Move-in Ready Near Station House Fireplace Duplex Terrace Parking Aquarium

Unlock the full description with a free trial

Includes AI translation, hazard data, cost estimates & nearby amenities

3 days free · cancel anytime

Start Free Trial

Spacious Two-Generation Family Home in Itabashi's Akatsuka

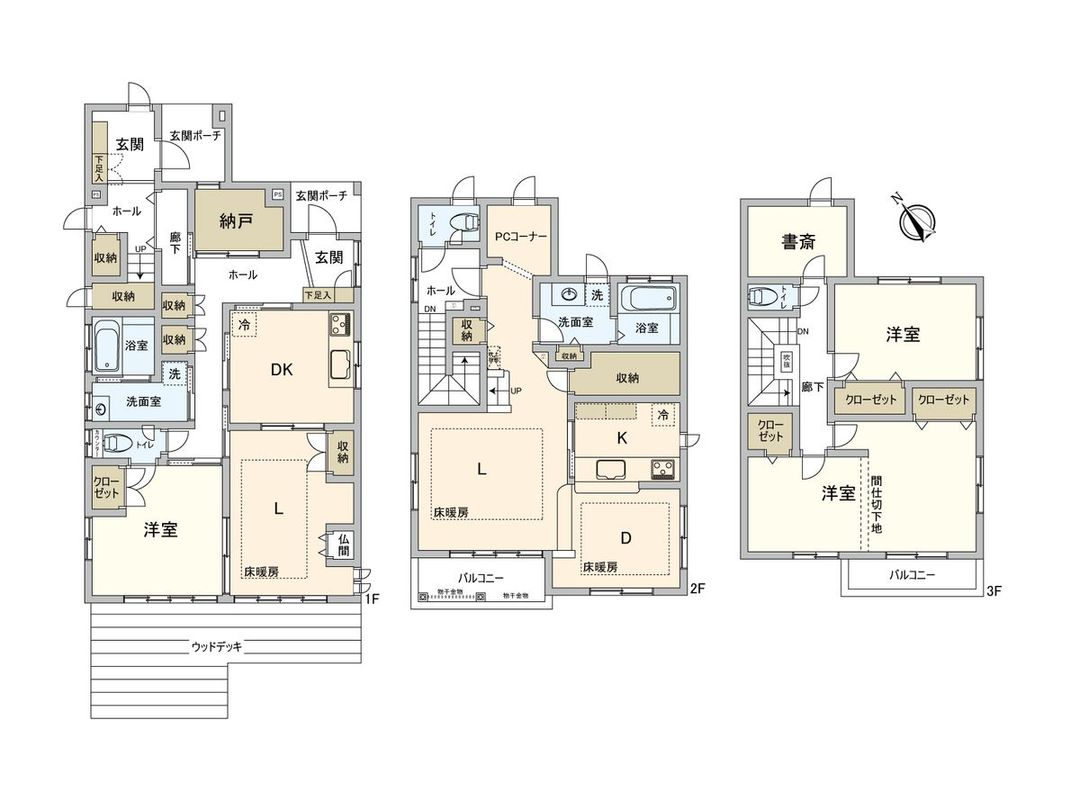
This substantial detached house in Itabashi Ward, Tokyo, presents a rare opportunity for multi-generational living or those seeking abundant space. Constructed in September 2006 by the reputable Sumitomo Forestry, the property is a well-appointed, three-story wooden home situated on a generous plot of land. The total land area is 195.14 sqm (approximately 59.02 tsubo), with a building area of 190.12 sqm (about 57.51 tsubo), offering significant room for family life.

The property's key feature is its design as a separated two-generation household residence. It features two separate entrances, allowing for distinct living spaces. The layout is divided with the first floor comprising 1SLDK and the second and third floors together offering 2SLDK plus a PC corner and a study. Critically, each household unit has its own complete set of living facilities, including an LDK, bathroom, washbasin area, and toilet. The home is equipped with ample storage, including a service room (nando) and hallway closets. The third-floor Western-style room can be partitioned into two separate rooms with additional construction work. The property benefits from a wooden deck and a garden with good sunlight.

Agent notes detail comprehensive equipment and features. The home includes floor heating in the first-floor living room and the second-floor living/dining area. The kitchen on the second floor is fitted with a dishwasher and cabinetry. Both the first and second-floor bathrooms are equipped with ventilation dryers and re-heating functions for the bath. All toilets (on the first, second, and third floors) have warm-water washing toilet seats. The building faces a public road to the northeast with a width of approximately 5.9 meters. The property includes a parking space (subject to vehicle type).

The location is highly convenient, within an 8-minute walk from the Tobu Tojo Line's Narimasu Station and a 10-minute walk from the Tokyo Metro Yurakucho and Fukutoshin Lines' Chikatetsu-narimasu Station, providing access to three different train lines. The property is situated on high ground. Daily necessities are easily accessible, with a supermarket within a 5-minute walk. The area of Akatsuka in Itabashi offers a blend of residential calm and urban convenience. An interesting local fact is that Itabashi Ward is home to the historic Akatsuka Castle Ruins Park, the site of a former medieval castle. For a major tourist attraction, residents are within reasonable travel distance to the iconic Tokyo Dome City complex in Bunkyo Ward, which features amusement rides, a spa, shopping, and concert venues.

This description was AI-generated from the original Japanese listing and may contain inaccuracies. Please verify details with the source listing.

Summary

Bedrooms: 3
Parking: 1
Year built: 2006
Land size: 195 / 2,100sqft
House size: 190 / 2,046sqft

Short-Term Rental (Minpaku)

Transport

HND

Haneda Airport — 29 km away

Nearby Konbini

Family Mart Family Mart — 3 min walk

Internet Connectivity

Natural Hazard Assessment

Flood Risk Low Risk
Landslide Risk Moderate
Tsunami Risk Low Risk
Earthquake Hazard Moderate

Unlock hazard data with a free trial

Flood, landslide, tsunami & earthquake risk for this property

3 days free · cancel anytime

Start Free Trial

Purchase Cost & Tax Estimates

Agent fees, acquisition tax, registration costs & annual property tax

Airbnb Revenue Estimate

Projected nightly rate, occupancy & net income for this property

Investment ROI

Annual yield, break-even timeline & 10-year return projection

Map & Street View

Map loading...

Location Accuracy Notice: Although we try to make the map accurate with coordinates or address details provided, the location data is provided by the agent. This map data should be used as reference for the surrounding area foremost.

Location Type Beds Price Land House View

* Sold properties shown for price comparison only. Prices reflect historical sale data.

Location Type Beds Rent/Month Land House View

* Rental prices shown are monthly rates. Contact property owner for current availability.