Back to results Spacious 7DK House Near Iyo-Saijo Station, Ehime Prefecture

Verified Listing

This property was checked recently and confirmed to still be available. Tap for details.

Verified Listing

This property has been verified in the last month. Our system regularly checks listings to ensure they are still available.

Last verified: April 29, 2026

Know someone who would love this? Gift them a subscription

¥4,000,000

Omachi, Saijo City, Ehime Prefecture

愛媛県西条市大町

Sign in to save properties

Work with our partners to help you search, evaluate, and purchase property in Japan.

Book a Consultation
Buy Near Station House Akiya Bank Corner Lot Quiet Area

Unlock the full description with a free trial

Includes AI translation, hazard data, cost estimates & nearby amenities

3 days free · cancel anytime

Start Free Trial

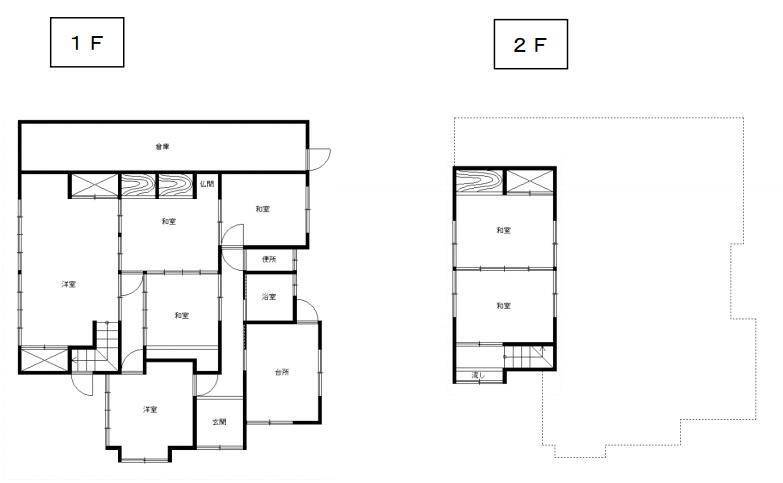
In the heart of Saijo City's urban district lies a spacious traditional Japanese home, offering an impressive 203.35 square meters of living space. This two-story wooden structure features a generous 7DK layout, making it ideal for multi-generational living or those seeking ample room to spread out.

Situated just a 4-minute walk from Iyo-Saijo Station on the JR Yosan Line, this property combines excellent accessibility with the charm of a quiet residential neighborhood. The 199.29-square-meter lot provides plenty of outdoor space, including parking for multiple vehicles.

The home boasts modern amenities including a system kitchen, two toilets, bath with reheating function, and a video intercom system. Its corner plot location and southern exposure ensure plenty of natural light. The property's central location puts it within easy reach of essential facilities, with a hospital just 100 meters away and the city hall within 1.2 kilometers.

This description was AI-generated from the original Japanese listing and may contain inaccuracies. Please verify details with the source listing.

Summary

Bedrooms: 7
Parking: 2
Land size: 199 / 2,145sqft
House size: 203 / 2,189sqft

Short-Term Rental (Minpaku)

Transport

Nearby Konbini

Lawson Lawson — 4 min walk

Internet Connectivity

Natural Hazard Assessment

Flood Risk Low Risk
Landslide Risk Moderate
Tsunami Risk Low Risk
Earthquake Hazard Moderate

Unlock hazard data with a free trial

Flood, landslide, tsunami & earthquake risk for this property

3 days free · cancel anytime

Start Free Trial

Purchase Cost & Tax Estimates

Agent fees, acquisition tax, registration costs & annual property tax

Airbnb Revenue Estimate

Projected nightly rate, occupancy & net income for this property

Investment ROI

Annual yield, break-even timeline & 10-year return projection

Map & Street View

Map loading...

Location Accuracy Notice: Although we try to make the map accurate with coordinates or address details provided, the location data is provided by the agent. This map data should be used as reference for the surrounding area foremost.

Location Type Beds Price Land House View

* Sold properties shown for price comparison only. Prices reflect historical sale data.

Location Type Beds Rent/Month Land House View

* Rental prices shown are monthly rates. Contact property owner for current availability.