Back to results 1997 2DK Single-Story House for Sale in Hekinan, Aichi

Needs Verification

This listing hasn't been verified recently. Tap to request a priority check!

Know someone who would love this? Gift them a subscription

¥27,800,000

Higashiyama-cho 2-chome, Hekinan City, Aichi Prefecture

愛知県碧南市東山町2丁目

Sign in to save properties

Work with our partners to help you search, evaluate, and purchase property in Japan.

Book a Consultation
Buy House Corner Lot Parking Suburban

Unlock the full description with a free trial

Includes AI translation, hazard data, cost estimates & nearby amenities

3 days free · cancel anytime

Start Free Trial

Spacious Single-Story Home with Excellent Sunlight in Hekinan, Aichi

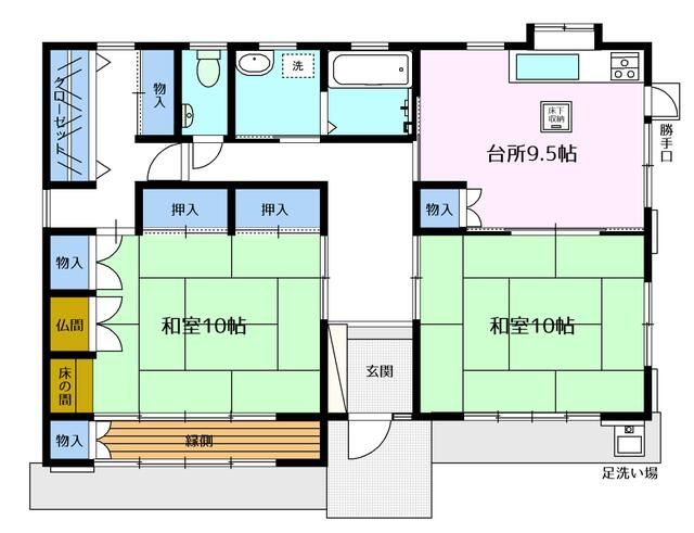
This property is a detached house for sale located in Hekinan City, Aichi Prefecture. The house is a single-story wooden structure built in December 1997, offering a comfortable 2DK layout. The total floor area is 91.09 sqm (approximately 27.55 tsubo), situated on a generous land plot of 418.28 sqm (approximately 126.52 tsubo). The property is on a corner lot with road frontage on two sides: 22.2 meters on the northeast side and 17.1 meters on the west side. The building-to-land ratio is 60% with a floor area ratio of 200%. The property is currently vacant, with a planned handover date of February 2026.

According to the agent's notes, the property features smooth household traffic flow and excellent sunlight. The land is designated as residential land within a City Planning Area (Urbanization Promotion Area) and falls under the Category I Exclusive Residential District. The property rights are ownership. The land is level, and there is a slight setback requirement of 5.3 sqm. There are no legal restrictions on rebuilding. The property includes a parking space.

The surrounding area of Hekinan City offers convenient daily amenities. The property is within walking distance of a FamilyMart convenience store and is close to schools and a library. For a broader exploration, the historic Inuyama Castle, a National Treasure of Japan, is located approximately 50 kilometers north of Hekinan and offers a fascinating day trip into the region's samurai history.

This description was AI-generated from the original Japanese listing and may contain inaccuracies. Please verify details with the source listing.

Summary

Bedrooms: 2
Parking: 1
Year built: 1997
Land size: 418 / 4,502sqft
House size: 91 / 980sqft

Short-Term Rental (Minpaku)

Transport

Nearby Konbini

Family Mart Family Mart — 7 min walk

Internet Connectivity

Natural Hazard Assessment

Flood Risk Low Risk
Landslide Risk Moderate
Tsunami Risk Low Risk
Earthquake Hazard Moderate

Unlock hazard data with a free trial

Flood, landslide, tsunami & earthquake risk for this property

3 days free · cancel anytime

Start Free Trial

Purchase Cost & Tax Estimates

Agent fees, acquisition tax, registration costs & annual property tax

Airbnb Revenue Estimate

Projected nightly rate, occupancy & net income for this property

Investment ROI

Annual yield, break-even timeline & 10-year return projection

Map & Street View

Map loading...

Location Accuracy Notice: Although we try to make the map accurate with coordinates or address details provided, the location data is provided by the agent. This map data should be used as reference for the surrounding area foremost.

Location Type Beds Price Land House View

* Sold properties shown for price comparison only. Prices reflect historical sale data.

Location Type Beds Rent/Month Land House View

* Rental prices shown are monthly rates. Contact property owner for current availability.