Back to results Detached House for Sale in Saitama City's Misato Ward
Added 6 days ago
¥29,800,000

Okura, Misato Ward, Saitama City, Saitama Prefecture

埼玉県さいたま市見沼区大字御蔵

Buy Move-in Ready Garden House Renovated Parking Suburban Quiet Area Stadium

Know someone who would love this? Gift them a subscription

This property has more to show

Earthquake & flood hazard assessment
Purchase cost & tax estimates
Full AI-translated description

Trusted by property buyers worldwide

Start 3-Day Free Trial

$5/month after trial · Cancel anytime

Detached House in Saitama City's Misato Ward

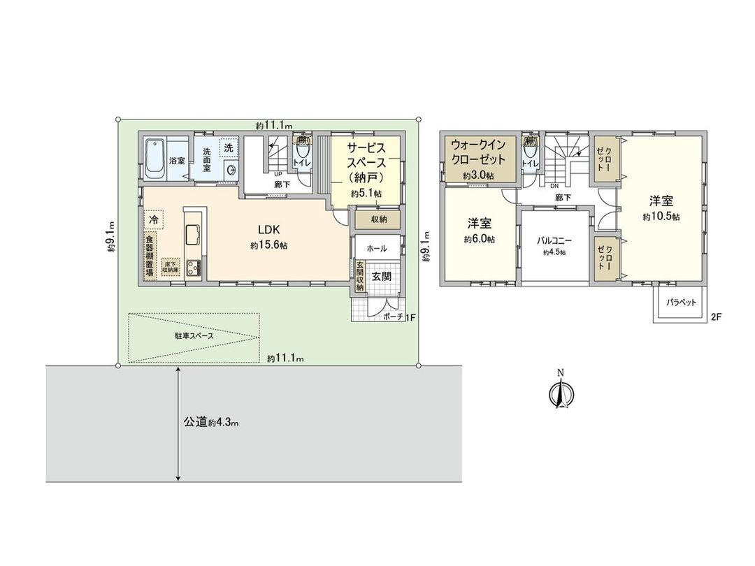
This detached house, located in Saitama City's Misato Ward, offers a comfortable living space with a total floor area of 97.7 sqm (approximately 29.55 tsubo) on a land plot of 101.13 sqm (approximately 30.59 tsubo). Built in April 2008, this two-story wooden structure features a 2SLDK layout, where the S (service space) is a storage room.

The property has undergone significant renovations. In February 2021, work included replacing the veranda handrail, exterior wall and roof painting, and replacing the entrance door. Earlier, in April 2019, the kitchen was replaced, the first and second-floor toilets were replaced, and the bathroom and washbasin were renovated. Additional work included replacing the living room screen door and re-papering the walls in the LDK, entrance, and one 6.0-jo Western-style room, as well as replacing the flooring in the LDK and that same Western-style room.

Key features of the home include an all-electric system and a face-to-face kitchen that facilitates family conversation. The kitchen also features underfloor storage. One of the approximately 6.0-jo Western-style rooms includes a walk-in closet. The south-facing balcony ensures good sunlight. Notably, the floor plan was changed from a 3SLDK to the current 2SLDK layout at the time of the original subdivision sale. The property includes one parking space, though there are vehicle type restrictions.

The location is convenient, with a supermarket within a 5-minute walk and an elementary school within a 10-minute walk. Access is via a 21-minute bus ride from Omiya Station on the Keihin-Tohoku and Negishi Lines, followed by a 2-minute walk from Nihon University Mae bus stop.

Special notes regarding the property include: Garbage area size / 4.11 sqm (ownership share 1/20). The property is also located within a height district (15m).

The land is designated as residential land within a Category I Exclusive Residential District and an urbanization promotion area. The building-to-land ratio is 60% and the floor area ratio is 200% (however, this is restricted to 172% due to the width of the front road). The property fronts a public road on the south side, approximately 4.3 meters wide. The current status is occupied, and the land rights are ownership.

This description was AI-generated from the original Japanese listing and may contain inaccuracies. Please verify details with the source listing.

Summary

Bedrooms: 2
Parking: 1
Year built: 2008
Land size: 101 / 1,089sqft
House size: 98 / 1,052sqft

Short-Term Rental (Minpaku)

Transport

HND

Haneda Airport — 41 km away

Nearest Konbini

daily_yamazaki Daily Yamazaki — 6 min walk

Internet Connectivity

Natural Hazard Assessment

Hazard data is a subscriber feature

Know the flood, landslide & tsunami risks before you buy

View Plans
¥29,800,000
Purchase Cost & Tax Estimates
Subscribe
Agent fee (3% + tax)¥000,000
Acquisition tax¥000,000
Registration & stamp¥000,000
Property tax (annual)¥00,000/yr
Subscribe to view cost & tax estimates →
Nightly Rate
Occupancy Rate
Max operating days/year
Est. booked nights/year
Gross annual revenue
Expenses breakdown
Cleaning
Platform fees (3%)
Management (20%)
Supplies
Insurance
Utilities
Total expenses
Net annual income
Monthly equivalent

Actual revenue varies by location, property quality, season, and management. Adjust sliders to model different scenarios.

Renovation Budget
Annual Rental Income

Auto-filled from Airbnb estimate

Purchase price
Renovation
Transaction costs
Total investment
Property tax
Insurance
Maintenance
Annual yield
Break-even
5-year return
10-year return
0 yr5101520+

Estimates only. Actual returns depend on rental demand, management quality, renovation scope, and market conditions. Adjust sliders to model scenarios.

Okura, Misato Ward, Saitama City, Saitama Prefecture

埼玉県さいたま市見沼区大字御蔵

Get Started

Sign in to save properties

Map & Street View

Map loading...

Location Accuracy Notice: Although we try to make the map accurate with coordinates or address details provided, the location data is provided by the agent. This map data should be used as reference for the surrounding area foremost.

Location Type Beds Price Land House View

* Sold properties shown for price comparison only. Prices reflect historical sale data.

Location Type Beds Rent/Month Land House View

* Rental prices shown are monthly rates. Contact property owner for current availability.