Back to results 4LDK+S House for Sale in Shibetsu, Hokkaido with 741m2 Lot
New Today

Know someone who would love this? Gift them a subscription

¥16,000,000

Asahicho Chuo, Shibetsu, Hokkaido

北海道士別市朝日町中央

Sign in to save properties

Work with our partners to help you search, evaluate, and purchase property in Japan.

Book a Consultation
Buy Garden Near Station House Ski Resort Area Corner Lot Parking

Unlock the full description with a free trial

Includes AI translation, hazard data, cost estimates & nearby amenities

3 days free · cancel anytime

Start Free Trial

Spacious Family Home in Shibetsu City with Large Lot

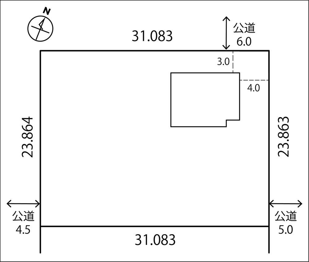
This property is a detached house located in Asahicho Chuo, Shibetsu City, Hokkaido. It is a 4LDK+S (storage room) layout with a building area of 126.34 square meters and a generous land area of 741.75 square meters. The house was completed in September 2011 and features a light-weight steel frame construction with two storeys.

The property boasts a large lot of over 100 tsubo, perfect for outdoor activities like BBQs. It is a corner lot with good southern exposure and excellent sunlight. The interior features include an LDK of over 18 jo, a shower-equipped vanity, a face-to-face kitchen, a walk-in closet, an IH cooking heater, a heated toilet seat, and good ventilation. The property also includes a storage room (納戸) and a carport for parking.

The property is located a 10-minute walk from the Asahi Station on the Shibetsu Railway. The surrounding neighborhood offers a park (Chibikko Hiroba) a 2-minute walk away, a post office a 3-minute walk, a bank a 5-minute walk, and elementary and junior high schools within a 6-minute walk. The area is also close to a ski resort, allowing for year-round enjoyment.

Utilities include public water supply and a main sewer system. The property is in a non-urban planning area with no designated land use zone. The agent notes that this information is automatically reflected in other inquiries and will be discarded after 30 minutes. This feature is only available for some properties.

This description was AI-generated from the original Japanese listing and may contain inaccuracies. Please verify details with the source listing.

Summary

Bedrooms: 4
Parking: 1
Year built: 2011
Land size: 742 / 7,984sqft
House size: 126 / 1,360sqft

Short-Term Rental (Minpaku)

Transport

CTS

New Chitose Airport — 166 km away

Internet Connectivity

Natural Hazard Assessment

Flood Risk Low Risk
Landslide Risk Moderate
Tsunami Risk Low Risk
Earthquake Hazard Moderate

Unlock hazard data with a free trial

Flood, landslide, tsunami & earthquake risk for this property

3 days free · cancel anytime

Start Free Trial

Purchase Cost & Tax Estimates

Agent fees, acquisition tax, registration costs & annual property tax

Airbnb Revenue Estimate

Projected nightly rate, occupancy & net income for this property

Investment ROI

Annual yield, break-even timeline & 10-year return projection

Map & Street View

Map loading...

Location Accuracy Notice: Although we try to make the map accurate with coordinates or address details provided, the location data is provided by the agent. This map data should be used as reference for the surrounding area foremost.

Location Type Beds Price Land House View

* Sold properties shown for price comparison only. Prices reflect historical sale data.

Location Type Beds Rent/Month Land House View

* Rental prices shown are monthly rates. Contact property owner for current availability.