Back to results 5LDK Corner Lot House for Sale in Matsumoto, Nagano
Marked sold 15 days ago

Know someone who would love this? Gift them a subscription

¥32,000,000

Ōaza Sōsha, Matsumoto City, Nagano Prefecture

長野県松本市大字惣社

Sign in to save properties

Work with our partners to help you search, evaluate, and purchase property in Japan.

Book a Consultation
Sold House Quiet Area

Unlock the full description with a free trial

Includes AI translation, hazard data, cost estimates & nearby amenities

3 days free · cancel anytime

Start Free Trial

Spacious Family Home in a Corner Lot Setting in Matsumoto

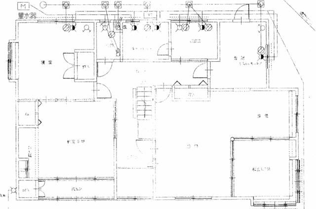
This well-established single-family house, built in October 1994, offers a generous living space of 169.98 sqm (approximately 51.41 tsubo) across two floors. The layout is a spacious 5LDK, providing ample room for family life and entertaining. The property is situated on a substantial land plot of 224.17 sqm (about 67.81 tsubo), which is a corner lot. The road frontage details are a key feature: to the north, a 4.5-meter wide public road with a frontage of 15.4 meters, and to the east, a 4-meter wide public road with a frontage of 11.2 meters.

The home is equipped with modern conveniences including a water supply, sewerage system, a bidet toilet seat, and two separate toilet locations. Architectural details include bay windows and a walk-in closet, adding both character and practicality to the living space. The property also includes parking and is located in a quiet residential zone designated as a Category I Low-Rise Exclusive Residential District.

Located in the Ōaza Sōsha area of Matsumoto City, Nagano Prefecture, this home benefits from a peaceful residential setting. Matsumoto is renowned for its stunning alpine scenery and rich cultural history. A major landmark and significant tourist attraction is the iconic Matsumoto Castle, one of Japan's most beautiful and complete original feudal castles, known for its striking black exterior. The area offers a blend of urban convenience and natural beauty, with easy access to the Japanese Alps.

This description was AI-generated from the original Japanese listing and may contain inaccuracies. Please verify details with the source listing.

Summary

Bedrooms: 5
Parking: 1
Year built: 1994
Land size: 224 / 2,413sqft
House size: 170 / 1,830sqft

Short-Term Rental (Minpaku)

Transport

HND

Haneda Airport — 179 km away

Nearby Konbini

Seven Eleven Seven Eleven — 6 min walk

Internet Connectivity

Natural Hazard Assessment

Flood Risk Low Risk
Landslide Risk Moderate
Tsunami Risk Low Risk
Earthquake Hazard Moderate

Unlock hazard data with a free trial

Flood, landslide, tsunami & earthquake risk for this property

3 days free · cancel anytime

Start Free Trial

Map & Street View

Map loading...

Location Accuracy Notice: Although we try to make the map accurate with coordinates or address details provided, the location data is provided by the agent. This map data should be used as reference for the surrounding area foremost.

Location Type Beds Price Land House View

* Sold properties shown for price comparison only. Prices reflect historical sale data.

Location Type Beds Rent/Month Land House View

* Rental prices shown are monthly rates. Contact property owner for current availability.