Back to results 3LDK Corner Lot House for Sale in Hirosaki, Aomori

Needs Verification

This listing hasn't been verified recently. Tap to request a priority check!

Know someone who would love this? Gift them a subscription

¥12,000,000

2 Chome-6-5 Kanda, Hirosaki City, Aomori Prefecture

青森県弘前市大字神田2丁目6-5

Sign in to save properties

Work with our partners to help you search, evaluate, and purchase property in Japan.

Book a Consultation
Buy House Akiya Bank Corner Lot Gas Heating/Cooking Needs Renovation Parking Storage Shed Quiet Area

Unlock the full description with a free trial

Includes AI translation, hazard data, cost estimates & nearby amenities

3 days free · cancel anytime

Start Free Trial

Spacious Corner Lot Home in Hirosaki with Development Potential

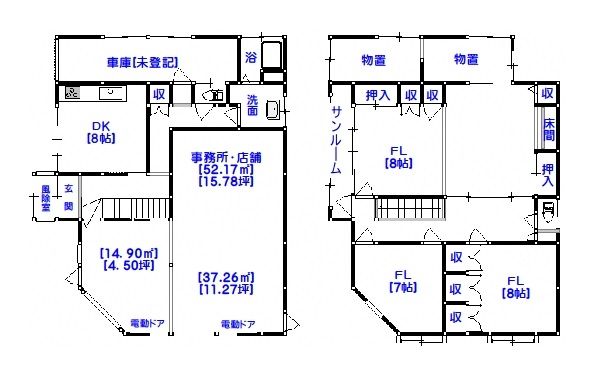
This property presents a significant opportunity in the historic city of Hirosaki, Aomori Prefecture. The listing is for a detached house built in June 1984, offering a generous 205.39 square meters of living space across a 3LDK layout on a 164.92 square meter corner plot. The home is situated in a quiet residential area and features a south-facing orientation, two toilets, a system kitchen, city gas, a monitor-equipped intercom, and parking for two or more vehicles. It is noted as being suitable for multi-generational living.

Critical agent notes provide essential details for prospective buyers. The property is offered under the conditions of "demolished vacant land delivery" or "as-is delivery." Being a corner lot, the building coverage ratio is increased by 10%. Additionally, the property includes a garage/storage shed (a two-story wooden structure with galvanized steel sheet roofing, unregistered).

This description was AI-generated from the original Japanese listing and may contain inaccuracies. Please verify details with the source listing.

Summary

Bedrooms: 3
Parking: 2
Year built: 1984
Land size: 165 / 1,775sqft
House size: 205 / 2,211sqft

Short-Term Rental (Minpaku)

Transport

CTS

New Chitose Airport — 260 km away

Nearby Konbini

Lawson Lawson — 2 min walk

Internet Connectivity

Natural Hazard Assessment

Flood Risk Low Risk
Landslide Risk Moderate
Tsunami Risk Low Risk
Earthquake Hazard Moderate

Unlock hazard data with a free trial

Flood, landslide, tsunami & earthquake risk for this property

3 days free · cancel anytime

Start Free Trial

Purchase Cost & Tax Estimates

Agent fees, acquisition tax, registration costs & annual property tax

Airbnb Revenue Estimate

Projected nightly rate, occupancy & net income for this property

Investment ROI

Annual yield, break-even timeline & 10-year return projection

Map & Street View

Map loading...

Location Accuracy Notice: Although we try to make the map accurate with coordinates or address details provided, the location data is provided by the agent. This map data should be used as reference for the surrounding area foremost.

Location Type Beds Price Land House View

* Sold properties shown for price comparison only. Prices reflect historical sale data.

Location Type Beds Rent/Month Land House View

* Rental prices shown are monthly rates. Contact property owner for current availability.