Back to results 4DK Detached House for Sale in Ichinomiya, Aichi

Needs Verification

This listing hasn't been verified recently. Tap to request a priority check!

Know someone who would love this? Gift them a subscription

¥10,500,000

Ichihigashi, Ichinomiya, Aichi Prefecture

愛知県一宮市三条字北平

Sign in to save properties

Work with our partners to help you search, evaluate, and purchase property in Japan.

Book a Consultation
Buy Move-in Ready Garden Near Station House Gas Heating/Cooking Parking Suburban

Unlock the full description with a free trial

Includes AI translation, hazard data, cost estimates & nearby amenities

3 days free · cancel anytime

Start Free Trial

Spacious 4DK Detached House in Ichinomiya, Aichi Prefecture

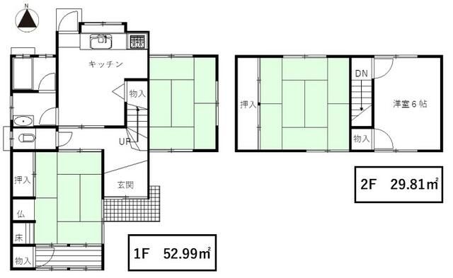
This property is a detached house for sale located in Ichinomiya City, Aichi Prefecture. The house offers a generous 4DK layout with a total floor area of 82.8 sqm (approximately 25.04 tsubo). The interior comprises three Japanese-style rooms (8-jo, 6-jo, and 6-jo) and one Western-style room (6-jo), providing flexible living space. The land area is a substantial 124.24 sqm (approximately 37.58 tsubo) based on measured survey, with the property situated on a flat plot in a quiet residential area.

Key equipment and features include city gas, electricity, and public water and sewage systems. Special notes from the agent indicate the property is currently vacant and will be handed over in its present condition. The property benefits from a south-facing primary exposure and includes parking space for one car. A definitive land survey has been completed. The property fronts a public road on the south side, with a frontage of approximately 10.8 meters on a road ranging from 6.7 to 12.0 meters wide. The school districts are Sanjo Elementary School (approx. 300m) and Onishi Daiichi Junior High School (approx. 750m).

The Ichinomiya area is known for its rich textile history, being a major center for woolen fabric production. The city offers a blend of urban convenience and local charm. For recreation, the historic and scenic Meiji Mura open-air architectural museum, which preserves buildings from the Meiji era, is a major cultural attraction located within a reasonable distance from the property.

This description was AI-generated from the original Japanese listing and may contain inaccuracies. Please verify details with the source listing.

Summary

Bedrooms: 4
Parking: 1
Year built: 1979
Land size: 124 / 1,337sqft
House size: 83 / 891sqft

Short-Term Rental (Minpaku)

Transport

Nearby Konbini

Lawson Lawson — 7 min walk

Internet Connectivity

Natural Hazard Assessment

Flood Risk Low Risk
Landslide Risk Moderate
Tsunami Risk Low Risk
Earthquake Hazard Moderate

Unlock hazard data with a free trial

Flood, landslide, tsunami & earthquake risk for this property

3 days free · cancel anytime

Start Free Trial

Purchase Cost & Tax Estimates

Agent fees, acquisition tax, registration costs & annual property tax

Airbnb Revenue Estimate

Projected nightly rate, occupancy & net income for this property

Investment ROI

Annual yield, break-even timeline & 10-year return projection

Map & Street View

Map loading...

Location Accuracy Notice: Although we try to make the map accurate with coordinates or address details provided, the location data is provided by the agent. This map data should be used as reference for the surrounding area foremost.

Location Type Beds Price Land House View

* Sold properties shown for price comparison only. Prices reflect historical sale data.

Location Type Beds Rent/Month Land House View

* Rental prices shown are monthly rates. Contact property owner for current availability.