Back to results 4DK Detached House for Sale in Kodaira, Tokyo

Verified Listing

This property was checked recently and confirmed to still be available. Tap for details.

Verified Listing

This property has been verified in the last month. Our system regularly checks listings to ensure they are still available.

Last verified: April 8, 2026

Know someone who would love this? Gift them a subscription

¥41,000,000

Tsudacho 3-chome, Kodaira City, Tokyo

東京都小平市津田町3丁目

Sign in to save properties

Work with our partners to help you search, evaluate, and purchase property in Japan.

Book a Consultation
Buy Move-in Ready Near Station House Parking Suburban Quiet Area Sanrio Puroland

Unlock the full description with a free trial

Includes AI translation, hazard data, cost estimates & nearby amenities

3 days free · cancel anytime

Start Free Trial

Detached House in Kodaira City, Tokyo

This detached house is located in a quiet residential area within the First Category Low-Rise Residential Zone of Tsudacho 3-chome, Kodaira City, Tokyo. The property offers convenient access to three train lines: an 11-minute walk to Shin-Kodaira Station on the Musashino Line, a 13-minute walk to Takanodai Station on the Seibu Kokubunji Line, and a 17-minute walk to Hitotsubashi-gakuen Station on the Seibu Tamako Line.

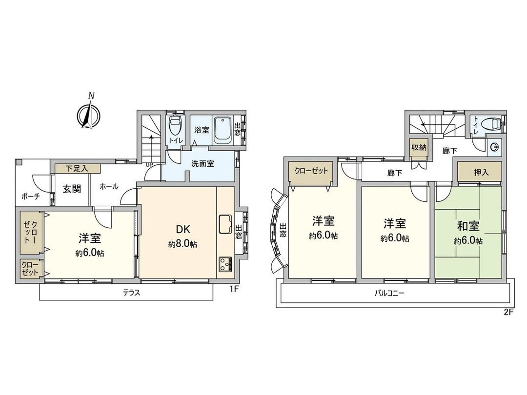
The house features a 4DK layout with a total building area of 85.1 square meters (approx. 25.74 tsubo) and sits on a land area of 111.45 square meters (approx. 33.71 tsubo). It was built in February 1993 and is a two-story wooden structure. The property includes a car parking space (subject to vehicle type) and a wide south-facing balcony connecting three rooms. The neighborhood is well-equipped with supermarkets, convenience stores, and parks, providing convenient daily living amenities. A supermarket is within a 10-minute walk, and an elementary school is also within a 10-minute walk.

Special Notes/Remarks: Due to the Musashino Line, a surface right (easement) is established on the property. The use of the land from Tokyo Bay Average Sea Level up to 79.50 meters is restricted. This note is repeated for emphasis: Due to the Musashino Line, a surface right is established. The use of the range from Tokyo Bay Average Sea Level up to 79.50 meters is restricted.

The property is currently vacant. The land is designated as residential land (宅地) and faces a public road approximately 4 meters wide on the west side. The building-to-land ratio is 40% and the floor area ratio is 80%. The property is for sale at a price of 41,000,000 yen.

This description was AI-generated from the original Japanese listing and may contain inaccuracies. Please verify details with the source listing.

Summary

Bedrooms: 4
Parking: 1
Year built: 1993
Land size: 111 / 1,200sqft
House size: 85 / 916sqft

Short-Term Rental (Minpaku)

Transport

HND

Haneda Airport — 34 km away

Nearest Konbini

circle_k Circle K — 4 min walk

Internet Connectivity

Natural Hazard Assessment

Flood Risk Low Risk
Landslide Risk Moderate
Tsunami Risk Low Risk
Earthquake Hazard Moderate

Unlock hazard data with a free trial

Flood, landslide, tsunami & earthquake risk for this property

3 days free · cancel anytime

Start Free Trial

Purchase Cost & Tax Estimates

Agent fees, acquisition tax, registration costs & annual property tax

Airbnb Revenue Estimate

Projected nightly rate, occupancy & net income for this property

Investment ROI

Annual yield, break-even timeline & 10-year return projection

Map & Street View

Map loading...

Location Accuracy Notice: Although we try to make the map accurate with coordinates or address details provided, the location data is provided by the agent. This map data should be used as reference for the surrounding area foremost.

Location Type Beds Price Land House View

* Sold properties shown for price comparison only. Prices reflect historical sale data.

Location Type Beds Rent/Month Land House View

* Rental prices shown are monthly rates. Contact property owner for current availability.