Back to results 3LDK Terraced House in Nakagusuku Village with Rental Income

Verified Listing

This property was checked recently and confirmed to still be available. Tap for details.

Verified Listing

This property has been verified in the last month. Our system regularly checks listings to ensure they are still available.

Last verified: April 22, 2026

Know someone who would love this? Gift them a subscription

¥44,020,000

1344 Arakaki, Nakagusuku Village, Nakagami District, Okinawa Prefecture

沖縄県中頭郡中城村新垣1344番地

Sign in to save properties

Work with our partners to help you search, evaluate, and purchase property in Japan.

Book a Consultation
Buy House

Unlock the full description with a free trial

Includes AI translation, hazard data, cost estimates & nearby amenities

3 days free · cancel anytime

Start Free Trial

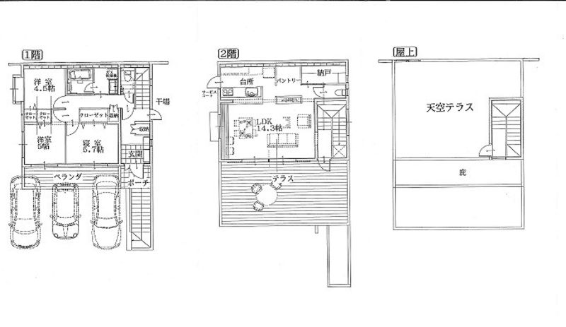
Modern Terraced House in Nakagusuku Village

This contemporary 3-story terraced house, built in 2018, offers a comfortable 3LDK layout with 112.4 square meters of living space situated on a 189.8 square meter plot. The property features reinforced concrete construction, ensuring durability and structural integrity. Currently tenanted with a monthly rental income of ¥160,000, this investment property yields an attractive 4.3% return.

The property includes three free parking spaces conveniently located within the premises. The kitchen features both system kitchen and counter kitchen configurations, providing modern cooking facilities. The current status indicates the property is rented, and interested parties are encouraged to contact the agent to arrange viewings on their preferred dates.

Located in Nakagusuku Village's tranquil residential neighborhood, the property offers easy access to local amenities while maintaining peaceful surroundings. The area is rich in Ryukyuan history, with the nearby Nakagusuku Castle Ruins, a UNESCO World Heritage site, showcasing impressive 15th-century Gusuku period architecture. This historic landmark provides fascinating insights into Okinawa's royal past while offering panoramic views of the East China Sea.

This description was AI-generated from the original Japanese listing and may contain inaccuracies. Please verify details with the source listing.

Summary

Bedrooms: 3
Parking: 3
Year built: 2018
Land size: 190 / 2,043sqft
House size: 112 / 1,210sqft

Short-Term Rental (Minpaku)

Transport

OKA

Naha Airport — 16 km away

Nearby Konbini

Family Mart Family Mart — 8 min walk

Internet Connectivity

Natural Hazard Assessment

Flood Risk Low Risk
Landslide Risk Moderate
Tsunami Risk Low Risk
Earthquake Hazard Moderate

Unlock hazard data with a free trial

Flood, landslide, tsunami & earthquake risk for this property

3 days free · cancel anytime

Start Free Trial

Purchase Cost & Tax Estimates

Agent fees, acquisition tax, registration costs & annual property tax

Airbnb Revenue Estimate

Projected nightly rate, occupancy & net income for this property

Investment ROI

Annual yield, break-even timeline & 10-year return projection

Map & Street View

Map loading...

Location Accuracy Notice: Although we try to make the map accurate with coordinates or address details provided, the location data is provided by the agent. This map data should be used as reference for the surrounding area foremost.

Location Type Beds Price Land House View

* Sold properties shown for price comparison only. Prices reflect historical sale data.

Location Type Beds Rent/Month Land House View

* Rental prices shown are monthly rates. Contact property owner for current availability.