Back to results 4LDK Detached House for Sale in Hikarigaoka, Ikoma, Nara

Needs Verification

This listing hasn't been verified recently. Tap to request a priority check!

Know someone who would love this? Gift them a subscription

¥16,800,000

Hikarigaoka 2-chome, Ikoma City, Nara Prefecture

奈良県生駒市ひかりが丘2丁目

Sign in to save properties

Work with our partners to help you search, evaluate, and purchase property in Japan.

Book a Consultation
Buy House

Unlock the full description with a free trial

Includes AI translation, hazard data, cost estimates & nearby amenities

3 days free · cancel anytime

Start Free Trial

Spacious Corner Lot Home in Nara's Hikarigaoka District

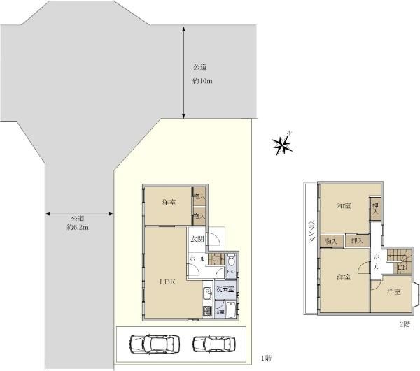
This detached house, built in 1986, offers a generous living space of 107.68㎡ (approximately 32.57 tsubo) across two stories, with a layout of 4LDK. The property stands on a substantial land plot of 159.81㎡ (approximately 48.34 tsubo), providing ample outdoor space. The location in Hikarigaoka 2-chome, Ikoma City, Nara Prefecture, offers a peaceful residential setting with convenient access via bus from the Kintetsu Keihanna Line's Shiroshiodai Station.

Critical property details from the agent notes include the road access situation: it is a corner lot. To the northwest, there is a 10-meter wide public road with a frontage of 6.4 meters (no designated position). To the southwest, there is a 6.2-meter wide road. Additional remarks clarify that the land is flat, parking is available (subject to vehicle type), and the stated building coverage ratio is the figure after the corner lot relaxation has been applied.

The area of Ikoma is rich in history and natural beauty, nestled between Nara and Osaka. An interesting local fact is that Ikoma is home to the ancient Ikoma Shrine, which is said to have been established in the 3rd century. The closest major landmark is the historic city of Nara, a former capital of Japan and a UNESCO World Heritage site, famous for its Great Buddha (Daibutsu) at Tōdai-ji Temple and the freely roaming deer in Nara Park.

This description was AI-generated from the original Japanese listing and may contain inaccuracies. Please verify details with the source listing.

Summary

Bedrooms: 4
Parking: 1
Year built: 1986
Land size: 160 / 1,720sqft
House size: 108 / 1,159sqft

Short-Term Rental (Minpaku)

Transport

ITM

Osaka International Airport — 26 km away

Nearby Konbini

Seven Eleven Seven Eleven — 12 min walk

Internet Connectivity

Natural Hazard Assessment

Flood Risk Low Risk
Landslide Risk Moderate
Tsunami Risk Low Risk
Earthquake Hazard Moderate

Unlock hazard data with a free trial

Flood, landslide, tsunami & earthquake risk for this property

3 days free · cancel anytime

Start Free Trial

Purchase Cost & Tax Estimates

Agent fees, acquisition tax, registration costs & annual property tax

Airbnb Revenue Estimate

Projected nightly rate, occupancy & net income for this property

Investment ROI

Annual yield, break-even timeline & 10-year return projection

Map & Street View

Map loading...

Location Accuracy Notice: Although we try to make the map accurate with coordinates or address details provided, the location data is provided by the agent. This map data should be used as reference for the surrounding area foremost.

Location Type Beds Price Land House View

* Sold properties shown for price comparison only. Prices reflect historical sale data.

Location Type Beds Rent/Month Land House View

* Rental prices shown are monthly rates. Contact property owner for current availability.