Added 1 day ago
Buy

Spacious 4LDK Detached House in Suginami's Zenpukuji

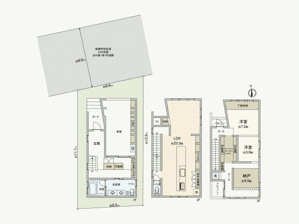
This charming two-story wooden house, built in 2013, offers a generous 100.6 sqm of living space across a well-designed 4LDK layout. Located in the quiet residential neighborhood of Zenpukuji 4-chome, Suginami Ward, Tokyo, the property is just a 12-minute walk from Seibu Shinjuku Line's Kami-Igusa Station, providing excellent access to central Tokyo. The home features a system kitchen with a counter and water purifier, a bathroom with a re-heating function and dryer, and a separate toilet. Additional amenities include flooring throughout, a walk-in closet, and storage in every room. The property sits on a flat, regularly shaped 128.48 sqm plot with a 6m-wide public road to the northeast and includes two free parking spaces (vehicle type dependent).

Critical agent notes have been translated and must be included. The current status is a vacant house. The agent encourages interested parties to feel free to inquire about preferred dates for a free viewing. Further remarks indicate the property is in a Category 1 Low-Rise Exclusive Residential Zone and a Quasi-Fire Prevention District. There are no plans for land readjustment or planned roads in the area. The property reference code is F51BX002.

The surrounding area of Zenpukuji is known for its peaceful atmosphere and is close to the lush greenery of Zenpukuji Park, offering residents a serene escape within the city. An interesting local fact is that the area is part of the Musashino Terrace, a large plateau known for its clean groundwater and historically good-quality well water. The closest major tourist attraction is the renowned Inokashira Park, approximately 2.2km away, a spacious park famous for its lake, boating, and the Ghibli Museum.

Summary

Bedrooms: 4
Parking: 2
Year built: 2013
Land size: 128 / 1,383sqft
House size: 101 / 1,083sqft

Closest Railway Line / Station:

Shinjuku Line / Kamishakujii (0.94 km)

Nearest konbini:

mini_stop convenience store Mini Stop - 4 minute(s) walk

Closest International Airport:

Haneda Airport (HND) - 26 km away

¥82,800,000

Zenpukuji 4-chome, Suginami Ward, Tokyo

東京都杉並区善福寺4丁目

Get Started

Sign in to save properties

View Original Listing: Requires subscription. Japanese language usually needed.

Get Started: Book an intro call to begin your property search with an English-speaking broker.

Map & Street View

Map loading...

Location Accuracy Notice: Although we try to make the map accurate with coordinates or address details provided, the location data is provided by the agent. This map data should be used as reference for the surrounding area foremost.

Similar Properties

Setagaya, Tokyo Prefecture

Buy House Near Station House Corner Lot Parking Suburban
3
66m²
116m²
lawson_store_100 convenience store Lawson Store 100 - 5 min walk

Nishi-Tokyo, Tokyo Prefecture

Buy House House New Build Modern House Parking Suburban
4
126m²
95m²
family_mart convenience store Family Mart - 9 min walk

Ota, Tokyo Prefecture

Buy Apartment Move-in Ready Near Station Apartment Corner Lot Modern House Terrace
2
1,468m²
64m²
lawson convenience store Lawson - 3 min walk

Katsushika, Tokyo Prefecture

Buy House Large Property Near Station House Parking Suburban
4
157m²
147m²
seven_eleven convenience store Seven Eleven - 6 min walk

8 views left

Subscribe for unlimited access

Subscribe