Back to results 4LDK Detached House for Sale in Ibaraki, Osaka | 200.09 sqm Land

Needs Verification

This listing hasn't been verified recently. Tap to request a priority check!

Know someone who would love this? Gift them a subscription

¥29,800,000

4 Yamatedai 1-chome, Ibaraki City, Osaka Prefecture

大阪府茨木市山手台1丁目4

Sign in to save properties

Work with our partners to help you search, evaluate, and purchase property in Japan.

Book a Consultation
Buy Move-in Ready Garden House Parking Suburban Quiet Area

Unlock the full description with a free trial

Includes AI translation, hazard data, cost estimates & nearby amenities

3 days free · cancel anytime

Start Free Trial

Spacious Family Home in Ibaraki's Quiet Yamatedai Neighborhood

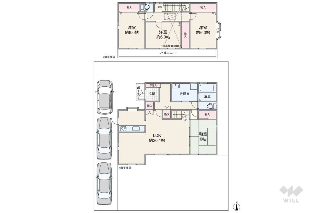
This well-maintained detached house, built in 2006, offers a generous and comfortable living environment in the peaceful residential area of Yamatedai, Ibaraki City, Osaka Prefecture. The property sits on a substantial plot of approximately 60 tsubo (200.09 sqm), providing ample outdoor space and parking for up to three vehicles.

The home's layout is designed for modern family life. It features a 4LDK configuration with a notably spacious 20.1-jo (approx. 33 sqm) combined living, dining, and kitchen area. Every bedroom is 6-jo or larger, and each room comes with built-in storage, maximizing usable living space. A unique feature is the living room staircase, which increases opportunities for family interaction. The powder room is conveniently located on the same floor as the LDK, creating an efficient layout for daily chores. The 6-jo Japanese-style room can be opened up to connect with the LDK, offering flexible space usage.

Key equipment and features include a system kitchen with a counter, IH cooking hob, bathroom with reheating function and dryer, shower-equipped vanity, washlet toilet, walk-in closet, underfloor heating, and a TV monitor intercom. The property is all-electric, barrier-free, south-facing, and comes with parking. Other notable features are public water supply, city gas, separate bath and toilet, bay windows, and a balcony.

The location offers a balanced lifestyle. It's a 2-minute walk to the "Ibaraki Sunny Town" bus stop, providing bus access to both the Hankyu Line's Ibaraki-shi Station and the JR Line's Ibaraki Station in approximately 20-30 minutes. The neighborhood is a quiet, well-planned residential area with rows of detached houses. For families, Yamatedai Elementary School is a 13-minute walk, and Hokuryo Junior High School is just a 7-minute walk away, with parks also nearby, creating a child-friendly environment.

The surrounding Ibaraki and northern Osaka area is rich with history and nature. An interesting local fact is that Ibaraki City is home to one of Japan's oldest sake breweries, dating back to the Edo period. The closest major landmark is the historic Ibaraki Shrine, a serene Shinto site with deep local roots, located a short drive from the property.

This description was AI-generated from the original Japanese listing and may contain inaccuracies. Please verify details with the source listing.

Summary

Bedrooms: 4
Parking: 3
Year built: 2006
Land size: 200 / 2,154sqft
House size: 111 / 1,194sqft

Short-Term Rental (Minpaku)

Transport

ITM

Osaka International Airport — 13 km away

Nearest Konbini

circle_k Circle K — 11 min walk

Internet Connectivity

Natural Hazard Assessment

Flood Risk Low Risk
Landslide Risk Moderate
Tsunami Risk Low Risk
Earthquake Hazard Moderate

Unlock hazard data with a free trial

Flood, landslide, tsunami & earthquake risk for this property

3 days free · cancel anytime

Start Free Trial

Purchase Cost & Tax Estimates

Agent fees, acquisition tax, registration costs & annual property tax

Airbnb Revenue Estimate

Projected nightly rate, occupancy & net income for this property

Investment ROI

Annual yield, break-even timeline & 10-year return projection

Map & Street View

Map loading...

Location Accuracy Notice: Although we try to make the map accurate with coordinates or address details provided, the location data is provided by the agent. This map data should be used as reference for the surrounding area foremost.

Location Type Beds Price Land House View

* Sold properties shown for price comparison only. Prices reflect historical sale data.

Location Type Beds Rent/Month Land House View

* Rental prices shown are monthly rates. Contact property owner for current availability.