Back to results 2012 Mitsui Home in Okazaki with Whole-House AC & 3 Parking Spaces

Verified Listing

This property was checked recently and confirmed to still be available. Tap for details.

Verified Listing

This property has been verified in the last month. Our system regularly checks listings to ensure they are still available.

Last verified: April 3, 2026

Know someone who would love this? Gift them a subscription

¥43,800,000

Kamimei 3-chome, Okazaki City, Aichi Prefecture

愛知県岡崎市上六名3丁目

Sign in to save properties

Work with our partners to help you search, evaluate, and purchase property in Japan.

Book a Consultation
Buy Move-in Ready Garden House Parking Suburban Quiet Area Castle Town

Unlock the full description with a free trial

Includes AI translation, hazard data, cost estimates & nearby amenities

3 days free · cancel anytime

Start Free Trial

Spacious Western-Style Detached House in Okazaki with Full-House Air Conditioning

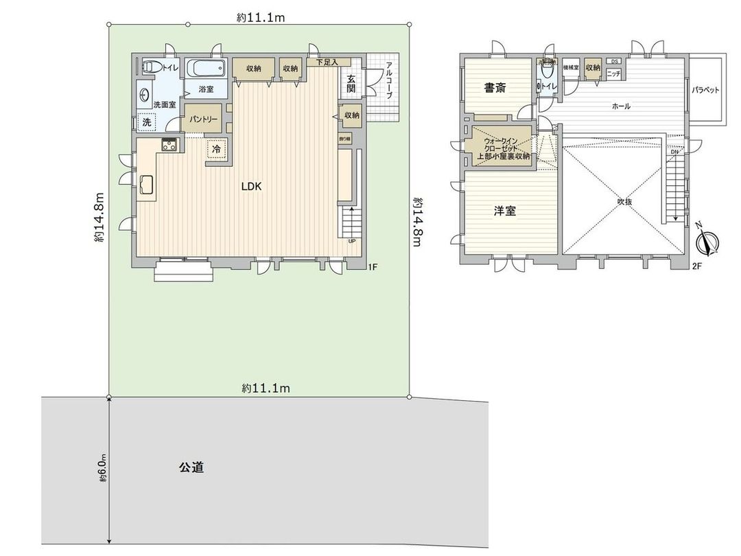
This detached house, built in March 2012 by Mitsui Home, offers a comfortable and modern living environment in Okazaki City, Aichi Prefecture. The property features a distinctive Western-style design with white exterior walls and is situated on a 165.3 sqm plot (approximately 50 tsubo) with a building area of 117.47 sqm (approximately 35.53 tsubo). The layout is 1SLDK, where the 'S' denotes a service space used as a storage room.

The interior is designed for openness and comfort. The spacious living room features a high ceiling, creating an airy atmosphere, and large south-facing windows fill the space with natural light. The Western-style room includes a walk-in closet for ample storage, and the kitchen is equipped with a pantry. Key equipment includes a DENSO whole-house air conditioning system for year-round comfort, as well as a dishwasher and a bathroom dryer for convenient daily living.

According to the agent's special notes, the property falls under the "Kamimei District Plan." This plan stipulates that for residential buildings, combined-use dwellings, or apartment buildings, more than half of the floor area must be for residential use, with commercial space limited to 50 sqm or less. The minimum lot size is 130 sqm, and the building height must not exceed 10 meters.

The location is family-friendly and convenient. It is about a 15-minute walk from the Aikan Line's Rokumei Station and an 18-minute walk (or a 4-minute bus ride plus a 5-minute walk from the Ashiikebashi stop) from Meitetsu's Higashi-Okazaki Station. The property faces a public road approximately 6 meters wide on the southwest side, providing parking space for up to three vehicles (subject to vehicle type). The neighborhood is served by Rokumei Elementary School (approx. 450m, 6-minute walk) and Ryukai Junior High School (approx. 600m, 8-minute walk).

This description was AI-generated from the original Japanese listing and may contain inaccuracies. Please verify details with the source listing.

Summary

Bedrooms: 1
Parking: 3
Year built: 2012
Land size: 165 / 1,779sqft
House size: 117 / 1,264sqft

Short-Term Rental (Minpaku)

Transport

Nearby Konbini

Seven Eleven Seven Eleven — 3 min walk

Internet Connectivity

Natural Hazard Assessment

Flood Risk Low Risk
Landslide Risk Moderate
Tsunami Risk Low Risk
Earthquake Hazard Moderate

Unlock hazard data with a free trial

Flood, landslide, tsunami & earthquake risk for this property

3 days free · cancel anytime

Start Free Trial

Purchase Cost & Tax Estimates

Agent fees, acquisition tax, registration costs & annual property tax

Airbnb Revenue Estimate

Projected nightly rate, occupancy & net income for this property

Investment ROI

Annual yield, break-even timeline & 10-year return projection

Map & Street View

Map loading...

Location Accuracy Notice: Although we try to make the map accurate with coordinates or address details provided, the location data is provided by the agent. This map data should be used as reference for the surrounding area foremost.

Location Type Beds Price Land House View

* Sold properties shown for price comparison only. Prices reflect historical sale data.

Location Type Beds Rent/Month Land House View

* Rental prices shown are monthly rates. Contact property owner for current availability.