Back to results New 9-Unit Wooden Apartment Building Near Karasumori Station, Nagoya

Needs Verification

This listing hasn't been verified recently. Tap to request a priority check!

Know someone who would love this? Gift them a subscription

¥160,000,000

4-chome, Ushida-dori, Nakamura Ward, Nagoya City, Aichi Prefecture

愛知県名古屋市中村区牛田通4丁目

Sign in to save properties

Work with our partners to help you search, evaluate, and purchase property in Japan.

Book a Consultation
Buy Legoland Stadium Aquarium

Unlock the full description with a free trial

Includes AI translation, hazard data, cost estimates & nearby amenities

3 days free · cancel anytime

Start Free Trial

Newly Built Wooden Apartment Building Steps from Karasumori Station

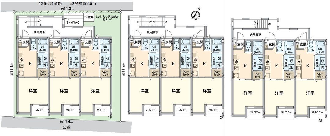
This newly constructed wooden apartment building, scheduled for completion in March 2026, presents a prime investment opportunity in Nagoya's Nakamura Ward. The property comprises nine 1K units, each approximately 26.09 square meters, with a total building area of 272.68 square meters (approx. 82.48 tsubo) on a 132 square meter land plot. Its most significant advantage is the exceptional location, just a one-minute walk from the Kintetsu Nagoya Line's Karasumori Station, ensuring high demand from single tenants.

The building is designed with modern conveniences for single occupants, including an auto-lock security system, parcel delivery boxes, washlet toilets, and baths with re-heating functions. It fronts two roads, with a 22.8-meter-wide public road to the southeast and a 3.6-meter-wide road to the northwest. The property is in a Neighborhood Commercial Zone within the urbanization promotion area, with a building-to-land ratio of 80% and a floor area ratio of 300%.

Critical Agent Notes (Translated): The yield is the ratio of the annual rental income (including common area fees, etc.) to the sales price, and is calculated before deducting public charges and other expenses necessary to maintain the property. Furthermore, the assumed rent and assumed yield are calculated based on the prevailing rent market, adding rent for vacant units to assume full occupancy. Rental income is not guaranteed to be reliably obtained in the future. (Survey date: March 2, 2026). The exclusive area of each residential unit is an approximate representation calculated from the design drawings as the wall-center area.

The area around Nakamura Ward is a bustling commercial and residential hub of Nagoya. An interesting local fact is that the ward is home to the Nagoya Station area, one of the world's largest train stations by floor area. The closest major tourist attraction is the historic Nagoya Castle, a magnificent reconstruction of the original 17th-century castle featuring golden shachihoko (dolphin-like roof ornaments) and beautiful gardens, located just a few kilometers away.

This description was AI-generated from the original Japanese listing and may contain inaccuracies. Please verify details with the source listing.

Summary

Year built: 2026
Land size: 132 / 1,421sqft
House size: 273 / 2,935sqft

Short-Term Rental (Minpaku)

Transport

Internet Connectivity

Natural Hazard Assessment

Flood Risk Low Risk
Landslide Risk Moderate
Tsunami Risk Low Risk
Earthquake Hazard Moderate

Unlock hazard data with a free trial

Flood, landslide, tsunami & earthquake risk for this property

3 days free · cancel anytime

Start Free Trial

Purchase Cost & Tax Estimates

Agent fees, acquisition tax, registration costs & annual property tax

Airbnb Revenue Estimate

Projected nightly rate, occupancy & net income for this property

Investment ROI

Annual yield, break-even timeline & 10-year return projection

Map & Street View

Map loading...

Location Accuracy Notice: Although we try to make the map accurate with coordinates or address details provided, the location data is provided by the agent. This map data should be used as reference for the surrounding area foremost.

Location Type Beds Price Land House View

* Sold properties shown for price comparison only. Prices reflect historical sale data.

Location Type Beds Rent/Month Land House View

* Rental prices shown are monthly rates. Contact property owner for current availability.