Back to results New 4LDK House in Nagakute, Aichi | 2026 Completion

Verified Listing

This property was checked recently and confirmed to still be available. Tap for details.

Verified Listing

This property has been verified in the last month. Our system regularly checks listings to ensure they are still available.

Last verified: April 13, 2026

Know someone who would love this? Gift them a subscription

¥52,600,000

Chojida, Nagakute City, Aichi Prefecture

愛知県長久手市丁子田

Sign in to save properties

Work with our partners to help you search, evaluate, and purchase property in Japan.

Book a Consultation
Buy Move-in Ready House New Build Suburban Quiet Area Ghibli Park Stadium

Unlock the full description with a free trial

Includes AI translation, hazard data, cost estimates & nearby amenities

3 days free · cancel anytime

Start Free Trial

New Construction Detached House in Nagakute City, Aichi Prefecture

This newly built detached house is located in Nagakute City, Aichi Prefecture, and is scheduled for completion in May 2026. The property is a 2-story wooden structure designated as a Long-Term Superior Quality Residence, featuring earthquake resistance grade 3 and quasi-fireproof construction standards.

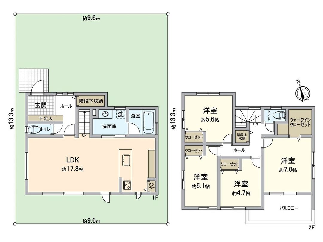
The house offers a 4LDK layout with a total floor area of 101.44 sqm. The approximately 17.8-jo (tatami mat) LDK is south-facing, ensuring a bright living space. All rooms come with lighting fixtures, and the home boasts ample storage. The master bedroom is about 7 jo in size and includes a walk-in closet. On the first floor, the living room is equipped with an electric shutter.

Key equipment and features include an IC card locking system, security glass (with some exceptions), a built-in dishwasher, a bathroom dryer, a delivery box, and an EV (electric vehicle) outlet. The building comes with a warranty of up to 35 years and 24-hour after-sales service.

The property is situated on a north-facing public road approximately 6 meters wide, providing an easy parking environment. The location is highly convenient, with MaxValu Nagakute store about 130 meters away (a 2-minute walk). Tanpopo Clinic is approximately 240 meters away, and Katahira 2-chome Park is about 260 meters, offering a green living environment. Drugstores and convenience stores are also within walking distance.

Access is available via bus from Fujigaoka Station on the Nagoya Municipal Subway Higashiyama Line (15-minute bus ride to "Ichigadou" stop, then a 7-minute walk) or from Nagakute Kosenjo Station on the Linimo line (20-minute bus ride to "Chojida" stop, then a 2-minute walk). The area is zoned as a Category I Low-Rise Residential Exclusive District.

This description was AI-generated from the original Japanese listing and may contain inaccuracies. Please verify details with the source listing.

Summary

Bedrooms: 4
Year built: 2026
Land size: 129 / 1,391sqft
House size: 101 / 1,092sqft

Short-Term Rental (Minpaku)

Transport

Nearest Konbini

seven_eleven Seven Eleven — 4 min walk

Internet Connectivity

Natural Hazard Assessment

Flood Risk Low Risk
Landslide Risk Moderate
Tsunami Risk Low Risk
Earthquake Hazard Moderate

Unlock hazard data with a free trial

Flood, landslide, tsunami & earthquake risk for this property

3 days free · cancel anytime

Start Free Trial

Purchase Cost & Tax Estimates

Agent fees, acquisition tax, registration costs & annual property tax

Airbnb Revenue Estimate

Projected nightly rate, occupancy & net income for this property

Investment ROI

Annual yield, break-even timeline & 10-year return projection

Map & Street View

Map loading...

Location Accuracy Notice: Although we try to make the map accurate with coordinates or address details provided, the location data is provided by the agent. This map data should be used as reference for the surrounding area foremost.

Location Type Beds Price Land House View

* Sold properties shown for price comparison only. Prices reflect historical sale data.

Location Type Beds Rent/Month Land House View

* Rental prices shown are monthly rates. Contact property owner for current availability.