Back to results 3LDK Detached House for Sale in Ina, Saitama - Investment Property

Verified Listing

This property was checked recently and confirmed to still be available. Tap for details.

Verified Listing

This property has been verified in the last month. Our system regularly checks listings to ensure they are still available.

Last verified: April 3, 2026

¥18,000,000

4-chome Nishokobari, Ina Town, Kitaadachi District, Saitama Prefecture

埼玉県北足立郡伊奈町西小針4丁目

Buy Garden House Corner Lot Parking Suburban Quiet Area

Know someone who would love this? Gift them a subscription

This property has more to show

Earthquake & flood hazard assessment
Purchase cost & tax estimates
Full AI-translated description

Trusted by property buyers worldwide

Start 3-Day Free Trial

$5/month after trial · Cancel anytime

Detached House with Investment Potential in Ina, Saitama

Agent notes provide critical financial details. The property is currently tenanted, and the sale requires the buyer to take over the existing lease agreement. An estimated annual rental income of 996,000 yen is projected for a fully occupied scenario, yielding a potential gross yield of 5.5% based on the asking price. It is important to note that this yield calculation is based on annual rental income (including common area fees) as a percentage of the sale price, before deducting taxes, public charges, and other necessary maintenance costs. The estimated rent and yield are calculated based on market rates, adding rent for any vacant spaces to assume full occupancy. Please be advised that rental income is not guaranteed to be reliably obtained in the future. (Survey date: -).

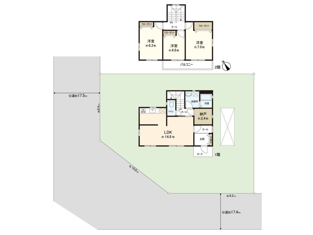
The property's features include its advantageous corner location at the intersection of southwest and northwest-facing roads, ensuring good sunlight. The front roads are wide, approximately 17.4 meters and 17.5 meters. It is situated within a completed land readjustment area. Parking space for one car is available (with vehicle type restrictions).

The area of Ina Town offers a balanced suburban lifestyle with convenient access to daily necessities. An interesting local fact is that the town is part of the Greater Saitama area developed alongside the Shintoshin (New Urban Center) and Tohoku Shinkansen line. The closest major landmark is the famous Kawagoe City, known as "Little Edo" for its beautifully preserved warehouse district and historic bell tower, located approximately a 30-minute drive away.

This description was AI-generated from the original Japanese listing and may contain inaccuracies. Please verify details with the source listing.

Summary

Bedrooms: 3
Parking: 1
Year built: 2002
Land size: 213 / 2,290sqft
House size: 88 / 944sqft

Short-Term Rental (Minpaku)

Transport

HND

Haneda Airport — 55 km away

Nearby Konbini

Lawson Lawson — 4 min walk
Seven Eleven Seven Eleven — 11 min walk

Internet Connectivity

Natural Hazard Assessment

Hazard data is a subscriber feature

Know the flood, landslide & tsunami risks before you buy

View Plans
¥18,000,000
Purchase Cost & Tax Estimates
Subscribe
Agent fee (3% + tax)¥000,000
Acquisition tax¥000,000
Registration & stamp¥000,000
Property tax (annual)¥00,000/yr
Subscribe to view cost & tax estimates →
Nightly Rate
Occupancy Rate
Max operating days/year
Est. booked nights/year
Gross annual revenue
Expenses breakdown
Cleaning
Platform fees (3%)
Management (20%)
Supplies
Insurance
Utilities
Total expenses
Net annual income
Monthly equivalent

Actual revenue varies by location, property quality, season, and management. Adjust sliders to model different scenarios.

Renovation Budget
Annual Rental Income

Auto-filled from Airbnb estimate

Purchase price
Renovation
Transaction costs
Total investment
Property tax
Insurance
Maintenance
Annual yield
Break-even
5-year return
10-year return
0 yr5101520+

Estimates only. Actual returns depend on rental demand, management quality, renovation scope, and market conditions. Adjust sliders to model scenarios.

4-chome Nishokobari, Ina Town, Kitaadachi District, Saitama Prefecture

埼玉県北足立郡伊奈町西小針4丁目

Get Started

Sign in to save properties

Map & Street View

Map loading...

Location Accuracy Notice: Although we try to make the map accurate with coordinates or address details provided, the location data is provided by the agent. This map data should be used as reference for the surrounding area foremost.

Location Type Beds Price Land House View

* Sold properties shown for price comparison only. Prices reflect historical sale data.

Location Type Beds Rent/Month Land House View

* Rental prices shown are monthly rates. Contact property owner for current availability.