Back to results 12DK House on 1737m2 Land in Kitakami, Iwate

Needs Verification

This listing hasn't been verified recently. Tap to request a priority check!

Know someone who would love this? Gift them a subscription

¥20,000,000

2-chiwari, Tatekawame, Wakamachi, Kitakami City, Iwate Prefecture

岩手県北上市和賀町竪川目2地割

Sign in to save properties

Work with our partners to help you search, evaluate, and purchase property in Japan.

Book a Consultation
Buy Garden House Large Garden Parking Rural

Unlock the full description with a free trial

Includes AI translation, hazard data, cost estimates & nearby amenities

3 days free · cancel anytime

Start Free Trial

Spacious Family Home with Extensive Grounds in Kitakami, Iwate

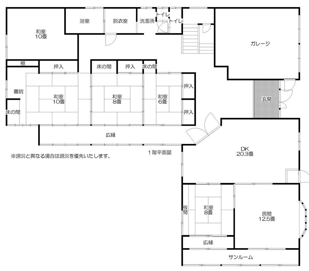
This substantial property presents a rare opportunity to acquire a spacious two-story house set on an expansive plot of over 1,737 square meters (approximately 525 tsubo) in Kitakami City, Iwate Prefecture. The home features a generous 12DK+S layout, offering ample room for a large family or those desiring significant space. Key property characteristics include the potential for move-in within the year, parking for two vehicles, a system kitchen, Japanese-style rooms (washitsu), a bathroom over one tsubo in size, and all living rooms measuring six tatami mats or larger. The front road is over 6 meters wide, providing excellent access.

According to the agent's notes, the property comes with a spacious garden and the possibility to discuss renovation plans to tailor the home to your needs. The equipment includes public water supply, main sewerage, and individual LPG. There is no private road burden, and the property faces a 13-meter wide road to the north. A special note from the agent states: "This information will be automatically reflected in other inquiries (discarded after 30 minutes) ※ Available for some properties only."

This description was AI-generated from the original Japanese listing and may contain inaccuracies. Please verify details with the source listing.

Summary

Bedrooms: 12
Parking: 2
Year built: 1976
Land size: 1,737 / 18,701sqft
House size: 397 / 4,273sqft

Short-Term Rental (Minpaku)

Transport

CTS

New Chitose Airport — 390 km away

Nearest Konbini

family_mart Family Mart — 11 min walk

Internet Connectivity

Natural Hazard Assessment

Flood Risk Low Risk
Landslide Risk Moderate
Tsunami Risk Low Risk
Earthquake Hazard Moderate

Unlock hazard data with a free trial

Flood, landslide, tsunami & earthquake risk for this property

3 days free · cancel anytime

Start Free Trial

Purchase Cost & Tax Estimates

Agent fees, acquisition tax, registration costs & annual property tax

Airbnb Revenue Estimate

Projected nightly rate, occupancy & net income for this property

Investment ROI

Annual yield, break-even timeline & 10-year return projection

Map & Street View

Map loading...

Location Accuracy Notice: Although we try to make the map accurate with coordinates or address details provided, the location data is provided by the agent. This map data should be used as reference for the surrounding area foremost.

Location Type Beds Price Land House View

* Sold properties shown for price comparison only. Prices reflect historical sale data.

Location Type Beds Rent/Month Land House View

* Rental prices shown are monthly rates. Contact property owner for current availability.