Back to results Spacious 3SLDK House for Sale in Hiratsuka, Kanagawa

Needs Verification

This listing hasn't been verified recently. Tap to request a priority check!

Know someone who would love this? Gift them a subscription

¥75,800,000

1-chome Yotsunomiya, Hiratsuka, Kanagawa Prefecture

神奈川県平塚市四之宮1丁目

Sign in to save properties

Work with our partners to help you search, evaluate, and purchase property in Japan.

Book a Consultation
Buy House Corner Lot Gas Heating/Cooking Parking Quiet Area

Unlock the full description with a free trial

Includes AI translation, hazard data, cost estimates & nearby amenities

3 days free · cancel anytime

Start Free Trial

Spacious Family Home with South-Facing Sunlight in Hiratsuka

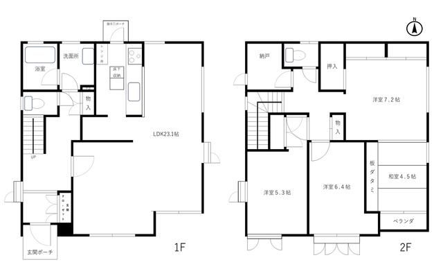
This detached house for sale in Hiratsuka, Kanagawa Prefecture, offers a generous living space of 117.91 sqm, providing ample room for family life. The south-facing orientation ensures excellent sunlight throughout the day, creating a warm and bright environment even in winter. The property features a 3SLDK layout, making it an ideal and secure base for a family.

Key equipment and features translated from the agent notes include: two toilets, a bathroom with a window, closets, a bay window, city gas, and public water and sewage systems. Special notes highlight that the front has no opposing buildings, the lot is a regular shape, it benefits from two-sided sunlight, and adjacent buildings are over 2 meters away. The remarks section confirms the transaction is a general agency, and the floor plan prioritizes the current condition.

The property is situated on a corner lot with road frontage to the south (5.5m wide, 19.5m public road) and west (6.5m wide, 16m public road). It includes two free parking spaces. The land is a flat, residential plot within the urbanization promotion area and quasi-industrial zone, with a building-to-land ratio of 60% and a floor area ratio of 200%.

The Hiratsuka area is part of the Shonan region, known for its beautiful coastline. An interesting local fact is that Hiratska hosts one of Japan's three major Tanabata (Star Festival) celebrations every July, featuring spectacular decorated bamboo displays. The closest major landmark is the iconic Enoshima Island, a popular tourist destination known for its shrine, sea caves, and panoramic views of Mount Fuji, accessible via a short train or car ride from the property's location.

This description was AI-generated from the original Japanese listing and may contain inaccuracies. Please verify details with the source listing.

Summary

Bedrooms: 3
Parking: 2
Year built: 1992
Land size: 398 / 4,286sqft
House size: 118 / 1,269sqft

Short-Term Rental (Minpaku)

Transport

HND

Haneda Airport — 45 km away

Nearby Konbini

Lawson Lawson — 3 min walk

Internet Connectivity

Natural Hazard Assessment

Flood Risk Low Risk
Landslide Risk Moderate
Tsunami Risk Low Risk
Earthquake Hazard Moderate

Unlock hazard data with a free trial

Flood, landslide, tsunami & earthquake risk for this property

3 days free · cancel anytime

Start Free Trial

Purchase Cost & Tax Estimates

Agent fees, acquisition tax, registration costs & annual property tax

Airbnb Revenue Estimate

Projected nightly rate, occupancy & net income for this property

Investment ROI

Annual yield, break-even timeline & 10-year return projection

Map & Street View

Map loading...

Location Accuracy Notice: Although we try to make the map accurate with coordinates or address details provided, the location data is provided by the agent. This map data should be used as reference for the surrounding area foremost.

Location Type Beds Price Land House View

* Sold properties shown for price comparison only. Prices reflect historical sale data.

Location Type Beds Rent/Month Land House View

* Rental prices shown are monthly rates. Contact property owner for current availability.