Back to results Affordable 3DK Terraced House for Sale Near Shijonawate Station

Verified Listing

This property was checked recently and confirmed to still be available. Tap for details.

Verified Listing

This property has been verified in the last month. Our system regularly checks listings to ensure they are still available.

Last verified: April 3, 2026

Know someone who would love this? Gift them a subscription

¥1,800,000

Daito City, Osaka Prefecture

大阪府大東市北条3丁目

Sign in to save properties

Work with our partners to help you search, evaluate, and purchase property in Japan.

Book a Consultation
Buy Renovation Project House Needs Renovation Rural Quiet Area

Unlock the full description with a free trial

Includes AI translation, hazard data, cost estimates & nearby amenities

3 days free · cancel anytime

Start Free Trial

Affordable Terraced House with Investment Potential in Daito City

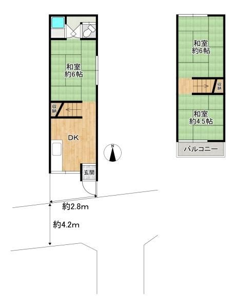
This property is a two-story wooden terraced house located in Daito City, Osaka Prefecture. Priced at a very accessible 1.8 million yen, it presents a compelling opportunity for investors or those seeking a budget-friendly entry into homeownership. The house features a 3DK layout with a total floor area of 43.23 square meters on a 45.36 square meter land plot (based on official registry). It was built in November 1966, making it approximately 60 years old.

Key equipment and features of the property include a system kitchen, counter kitchen, IH cooking hob, gas cooking hob, bath with reheating function, bathroom dryer, washbasin with shower, heated toilet seat, walk-in closet, storage in all rooms, TV monitor intercom, and underfloor heating. The property is all-electric, barrier-free, south-facing, and comes with parking. Other utilities include public water supply, city gas, sewerage, and a balcony.

Special notes from the agent indicate several critical points: this is a sale of land with an old house attached. The judicial scrivener for the transaction must be the agency's designated one. Due to the age of the building, renovation is necessary. There are disclosure items to be reviewed. Rebuilding on the land is not permitted. Finally, there is a significant discrepancy between the officially registered land area and the actual current land area, which requires careful consideration.

The location offers excellent convenience, being just a 7-minute walk (532m) from Shijonawate Station on the JR West Katamachi Line, providing direct access to central Osaka. The south-facing orientation ensures good sunlight throughout the day, which is beneficial for drying laundry and keeping the interior warm in winter. The area is a quiet residential neighborhood within Daito City. An interesting local fact is that Daito City is known for its numerous parks and green spaces, including the expansive Daito Park, which features sports facilities and peaceful walking paths. The closest major landmark is the historic Shijonawate Shrine, a serene cultural site located near the station, offering a glimpse into the region's history.

This description was AI-generated from the original Japanese listing and may contain inaccuracies. Please verify details with the source listing.

Summary

Bedrooms: 3
Year built: 1966
Land size: 45 / 488sqft
House size: 43 / 465sqft

Short-Term Rental (Minpaku)

Transport

ITM

Osaka International Airport — 20 km away

Nearby Konbini

Family Mart Family Mart — 4 min walk

Internet Connectivity

Natural Hazard Assessment

Flood Risk Low Risk
Landslide Risk Moderate
Tsunami Risk Low Risk
Earthquake Hazard Moderate

Unlock hazard data with a free trial

Flood, landslide, tsunami & earthquake risk for this property

3 days free · cancel anytime

Start Free Trial

Purchase Cost & Tax Estimates

Agent fees, acquisition tax, registration costs & annual property tax

Airbnb Revenue Estimate

Projected nightly rate, occupancy & net income for this property

Investment ROI

Annual yield, break-even timeline & 10-year return projection

Map & Street View

Map loading...

Location Accuracy Notice: Although we try to make the map accurate with coordinates or address details provided, the location data is provided by the agent. This map data should be used as reference for the surrounding area foremost.

Location Type Beds Price Land House View

* Sold properties shown for price comparison only. Prices reflect historical sale data.

Location Type Beds Rent/Month Land House View

* Rental prices shown are monthly rates. Contact property owner for current availability.