Back to results Apartment Building for Sale in Ikebukuro, Tokyo

Verified Listing

This property was checked recently and confirmed to still be available. Tap for details.

Verified Listing

This property has been verified in the last month. Our system regularly checks listings to ensure they are still available.

Last verified: April 18, 2026

Know someone who would love this? Gift them a subscription

¥445,000,000

2-chome, Ikebukuro, Toshima-ku, Tokyo

東京都豊島区池袋2丁目

Sign in to save properties

Work with our partners to help you search, evaluate, and purchase property in Japan.

Book a Consultation
Buy Business Near Station Apartment Renovated City Center Stadium Aquarium Reinforced Concrete

Unlock the full description with a free trial

Includes AI translation, hazard data, cost estimates & nearby amenities

3 days free · cancel anytime

Start Free Trial

Apartment Building Investment in Ikebukuro, Tokyo

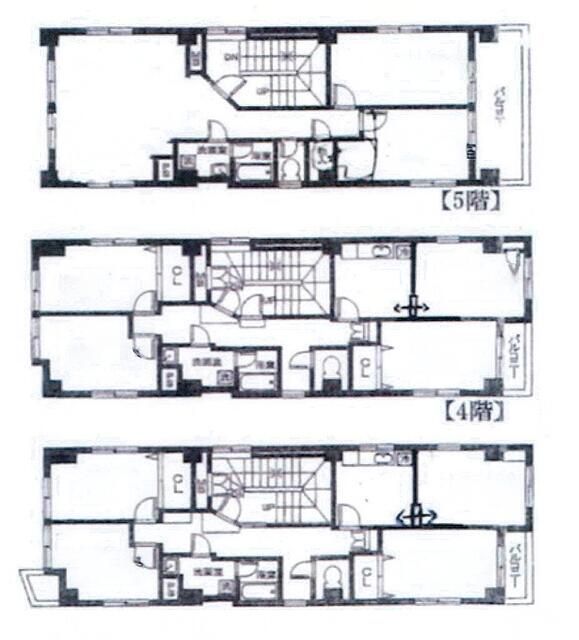
This listing presents a commercial investment opportunity in the form of an apartment building located in the bustling Ikebukuro district of Tokyo. The property is a reinforced concrete (RC) structure built in July 1984, standing five stories above ground with one basement level. The total building area is 409.31 square meters (approximately 123.81 tsubo), situated on a land plot of 95.81 square meters (approximately 28.98 tsubo). The land is designated as residential land within a commercial zone, with a building-to-land ratio of 80% and a floor area ratio of 600%.

The property is currently tenanted, offering immediate rental income for a new owner. Ownership rights are full ownership (所有権). The land shape and site conditions are detailed, with road frontage specifics noted: the property fronts a 7.9-meter wide public road to the east, with no positional designation (位置指定無). The terrain is described as sloping.

Transportation access is a key feature, with the building within a short walk of multiple major train lines. It is approximately a 7-minute walk from the JR Yamanote Line's Ikebukuro Station, a 5-minute walk from the Tokyo Metro Marunouchi Line's Ikebukuro Station, and a 7-minute walk from the Tobu Tojo Line's Ikebukuro Station, placing it in a highly connected urban hub.

This description was AI-generated from the original Japanese listing and may contain inaccuracies. Please verify details with the source listing.

Summary

Year built: 1984
Land size: 96 / 1,031sqft
House size: 409 / 4,406sqft

Short-Term Rental (Minpaku)

Transport

HND

Haneda Airport — 22 km away

Nearby Konbini

Family Mart Family Mart — 1 min walk

Internet Connectivity

Natural Hazard Assessment

Flood Risk Low Risk
Landslide Risk Moderate
Tsunami Risk Low Risk
Earthquake Hazard Moderate

Unlock hazard data with a free trial

Flood, landslide, tsunami & earthquake risk for this property

3 days free · cancel anytime

Start Free Trial

Purchase Cost & Tax Estimates

Agent fees, acquisition tax, registration costs & annual property tax

Airbnb Revenue Estimate

Projected nightly rate, occupancy & net income for this property

Investment ROI

Annual yield, break-even timeline & 10-year return projection

Map & Street View

Map loading...

Location Accuracy Notice: Although we try to make the map accurate with coordinates or address details provided, the location data is provided by the agent. This map data should be used as reference for the surrounding area foremost.

Location Type Beds Price Land House View

* Sold properties shown for price comparison only. Prices reflect historical sale data.

Location Type Beds Rent/Month Land House View

* Rental prices shown are monthly rates. Contact property owner for current availability.