Back to results 4SLDK Steel Frame House for Sale in Kashiwara, Osaka

Verified Listing

This property was checked recently and confirmed to still be available. Tap for details.

Verified Listing

This property has been verified in the last month. Our system regularly checks listings to ensure they are still available.

Last verified: April 3, 2026

Know someone who would love this? Gift them a subscription

¥8,800,000

Tanabe 2-chome, Kashiwara City, Osaka Prefecture

大阪府柏原市田辺2丁目

Sign in to save properties

Work with our partners to help you search, evaluate, and purchase property in Japan.

Book a Consultation
Buy Move-in Ready Garden House Parking Suburban Quiet Area

Unlock the full description with a free trial

Includes AI translation, hazard data, cost estimates & nearby amenities

3 days free · cancel anytime

Start Free Trial

Spacious Steel-Frame Family Home in Kashiwara, Osaka

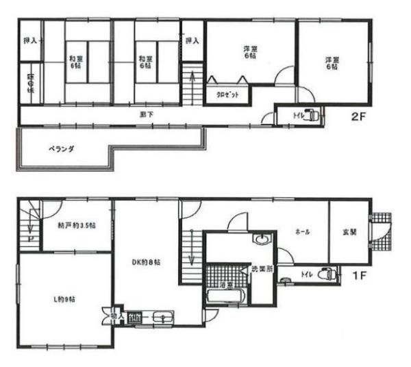
This well-maintained detached house, built in August 1976, offers a generous living space of 149.82 square meters on a 190.38 square meter plot in the quiet residential area of Tanabe 2-chome, Kashiwara City, Osaka Prefecture. The property features a 4SLDK layout, providing ample room for a large family or those desiring extra space for a home office or hobbies.

Key equipment and features of the home include a system kitchen with a counter and IH cooktop, a bathroom with a reheating function and dryer, a shower-equipped vanity, and two toilets. The interior is outfitted with practical amenities such as a walk-in closet, storage in all rooms, a TV monitor-equipped door phone, and underfloor heating. The property is all-electric, barrier-free, south-facing, and comes with a free parking space for one car. Additional features include wooden flooring and multiple closets.

The location is highly convenient, with Osaka Kyoiku University Mae Station on the Kintetsu Osaka Line just a 12-minute walk away, providing easy access to central Osaka. Daily necessities are within easy reach, with a convenience store located only 518 meters (approximately a 7-minute walk) from the property. The area is also served by local schools, with Kokubun Elementary School 1,200 meters away and Kokubun Junior High School 900 meters away.

This description was AI-generated from the original Japanese listing and may contain inaccuracies. Please verify details with the source listing.

Summary

Bedrooms: 4
Parking: 1
Year built: 1976
Land size: 190 / 2,049sqft
House size: 150 / 1,613sqft

Short-Term Rental (Minpaku)

Transport

ITM

Osaka International Airport — 31 km away

Nearest Konbini

circle_k Circle K — 9 min walk

Internet Connectivity

Natural Hazard Assessment

Flood Risk Low Risk
Landslide Risk Moderate
Tsunami Risk Low Risk
Earthquake Hazard Moderate

Unlock hazard data with a free trial

Flood, landslide, tsunami & earthquake risk for this property

3 days free · cancel anytime

Start Free Trial

Purchase Cost & Tax Estimates

Agent fees, acquisition tax, registration costs & annual property tax

Airbnb Revenue Estimate

Projected nightly rate, occupancy & net income for this property

Investment ROI

Annual yield, break-even timeline & 10-year return projection

Map & Street View

Map loading...

Location Accuracy Notice: Although we try to make the map accurate with coordinates or address details provided, the location data is provided by the agent. This map data should be used as reference for the surrounding area foremost.

Location Type Beds Price Land House View

* Sold properties shown for price comparison only. Prices reflect historical sale data.

Location Type Beds Rent/Month Land House View

* Rental prices shown are monthly rates. Contact property owner for current availability.