Back to results Nakagusuku Village 3LDK Terraced House for Sale - 112.4m²

Verified Listing

This property was checked recently and confirmed to still be available. Tap for details.

Verified Listing

This property has been verified in the last month. Our system regularly checks listings to ensure they are still available.

Last verified: April 21, 2026

Know someone who would love this? Gift them a subscription

¥44,010,000

Arakaki, Nakagusuku Village, Okinawa Prefecture

沖縄県中城村新垣

Sign in to save properties

Work with our partners to help you search, evaluate, and purchase property in Japan.

Book a Consultation
Buy House Quiet Area

Unlock the full description with a free trial

Includes AI translation, hazard data, cost estimates & nearby amenities

3 days free · cancel anytime

Start Free Trial

Sun Hills Town Terrace House in Nakagusuku

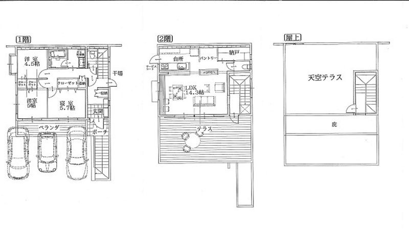
This three-story terraced house in the quiet residential area of Nakagusuku Village offers a 3LDK layout with approximately 112.4 square meters of living space. Built in 2018 with a wooden structure, the property features a system kitchen, two toilets, and three parking spaces. Currently tenanted with a fixed-term lease agreement, it presents an investment opportunity with potential for future personal use.

The property is located in the Arakaki district of Nakagusuku Village, Okinawa Prefecture, just a six-minute walk from the Eirin Shomae bus stop. This area is part of the Central Okinawa region known for its blend of traditional culture and modern convenience. Nakagusuku Village is home to the UNESCO World Heritage Site Nakagusuku Castle ruins, which offer panoramic views of the East China Sea and showcase Ryukyuan masonry techniques dating back to the 14th century.

This description was AI-generated from the original Japanese listing and may contain inaccuracies. Please verify details with the source listing.

Summary

Bedrooms: 3
Parking: 3
Year built: 2018
Land size: 190 / 2,043sqft
House size: 112 / 1,210sqft

Short-Term Rental (Minpaku)

Transport

OKA

Naha Airport — 16 km away

Nearby Konbini

Family Mart Family Mart — 8 min walk

Internet Connectivity

Natural Hazard Assessment

Flood Risk Low Risk
Landslide Risk Moderate
Tsunami Risk Low Risk
Earthquake Hazard Moderate

Unlock hazard data with a free trial

Flood, landslide, tsunami & earthquake risk for this property

3 days free · cancel anytime

Start Free Trial

Purchase Cost & Tax Estimates

Agent fees, acquisition tax, registration costs & annual property tax

Airbnb Revenue Estimate

Projected nightly rate, occupancy & net income for this property

Investment ROI

Annual yield, break-even timeline & 10-year return projection

Map & Street View

Map loading...

Location Accuracy Notice: Although we try to make the map accurate with coordinates or address details provided, the location data is provided by the agent. This map data should be used as reference for the surrounding area foremost.

Location Type Beds Price Land House View

* Sold properties shown for price comparison only. Prices reflect historical sale data.

Location Type Beds Rent/Month Land House View

* Rental prices shown are monthly rates. Contact property owner for current availability.