Back to results [W2909-097]Takenouchi, Wadayama-cho, Asago City | Asago City Empty House Bank

Verified Listing

This property was checked recently and confirmed to still be available. Tap for details.

Verified Listing

This property has been verified in the last month. Our system regularly checks listings to ensure they are still available.

Last verified: April 29, 2026

Know someone who would love this? Gift them a subscription

¥2,000,000

Takenouchi, Wadayamacho, Asago City

 朝来市和田山町竹ノ内

Sign in to save properties

Buy House

[W2909-097]Takenouchi, Wadayama-cho, Asago City | Asago City Empty House Bank

Summary

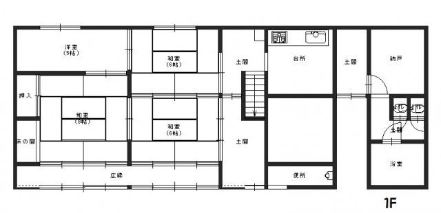
Land size: 277 / 2,981sqft
House size: 237 / 2,552sqft

Short-Term Rental (Minpaku)

Transport

Nearest Konbini

mini_stop Mini Stop — 76 min walk

Internet Connectivity

Natural Hazard Assessment

Flood Risk Low Risk
Landslide Risk Moderate
Tsunami Risk Low Risk
Earthquake Hazard Moderate

Unlock hazard data with a free trial

Flood, landslide, tsunami & earthquake risk for this property

3 days free · cancel anytime

Start Free Trial

Purchase Cost & Tax Estimates

Agent fees, acquisition tax, registration costs & annual property tax

Airbnb Revenue Estimate

Projected nightly rate, occupancy & net income for this property

Investment ROI

Annual yield, break-even timeline & 10-year return projection

Map & Street View

Map loading...

Location Accuracy Notice: Although we try to make the map accurate with coordinates or address details provided, the location data is provided by the agent. This map data should be used as reference for the surrounding area foremost.

Location Type Beds Price Land House View

* Sold properties shown for price comparison only. Prices reflect historical sale data.

Location Type Beds Rent/Month Land House View

* Rental prices shown are monthly rates. Contact property owner for current availability.