Back to results 5SLDK House with Office & Warehouse Near Shin-Mori-Furuichi Station

Needs Verification

This listing hasn't been verified recently. Tap to request a priority check!

Know someone who would love this? Gift them a subscription

¥180,000,000

Furuichi 3-chome, Joto Ward, Osaka City, Osaka Prefecture

大阪府大阪市城東区古市3丁目

Sign in to save properties

Work with our partners to help you search, evaluate, and purchase property in Japan.

Book a Consultation
Buy Universal Studios Stadium

Unlock the full description with a free trial

Includes AI translation, hazard data, cost estimates & nearby amenities

3 days free · cancel anytime

Start Free Trial

Spacious Four-Story Steel-Frame House with Office and Warehouse in Osaka's Joto Ward

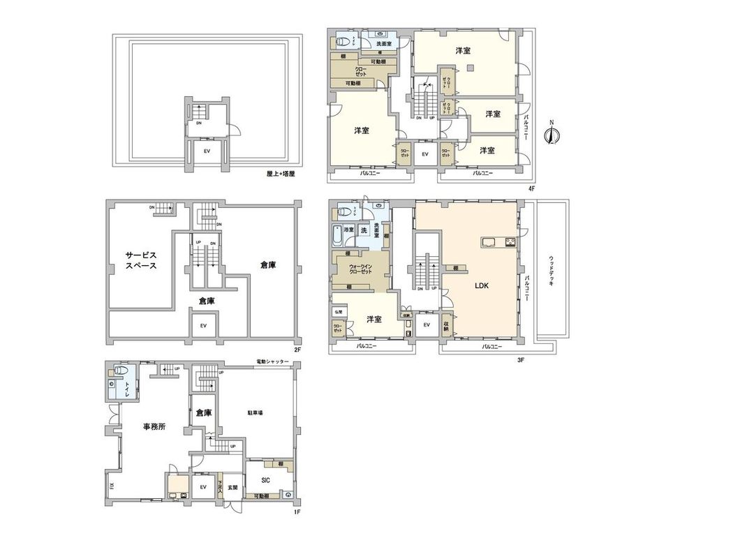
This substantial property is a four-story, steel-frame detached house located in Osaka's Joto Ward, offering a rare combination of residential and functional space. The layout is a generous 5SLDK, which includes five bedrooms, a living room, dining room, and kitchen. As per the agent's special notes, the layout is specifically detailed as 5SLDK plus a warehouse and an office, providing excellent potential for home-based business or storage needs. The service room (S) is noted as a storage room.

The property boasts a significant total floor area of 399.34 square meters (approximately 120.8 tsubo) on a land plot of 190.67 square meters (about 57.67 tsubo). It was built in April 2003 and features a highly convenient location just a 3-minute walk (about 200m) from the Osaka Metro Imazatosuji Line's Shin-Mori-Furuichi Station. Additional stations, Morishoji on the Keihan Main Line and Sekime-Takatono on the Osaka Metro Tanimachi Line, are within a 12-minute walk. The property is situated on a corner lot with a wide front road of approximately 11.0 meters on the west side.

Key features include an elevator, a rooftop area, a wooden deck, and parking for up to four vehicles (with vehicle type restrictions). The interior has a history of renovation. Equipment includes a walk-in closet, a shoe-in closet, and a two-stage mechanical parking system. The surrounding area is family-friendly, with Furuichi Kita Park just a 1-minute walk away and Sumire Elementary School within a 10-minute walk.

This description was AI-generated from the original Japanese listing and may contain inaccuracies. Please verify details with the source listing.

Summary

Bedrooms: 5
Parking: 4
Year built: 2003
Land size: 191 / 2,052sqft
House size: 399 / 4,298sqft

Short-Term Rental (Minpaku)

Transport

ITM

Osaka International Airport — 14 km away

Nearest Konbini

family_mart Family Mart — 3 min walk

Internet Connectivity

Natural Hazard Assessment

Flood Risk Low Risk
Landslide Risk Moderate
Tsunami Risk Low Risk
Earthquake Hazard Moderate

Unlock hazard data with a free trial

Flood, landslide, tsunami & earthquake risk for this property

3 days free · cancel anytime

Start Free Trial

Purchase Cost & Tax Estimates

Agent fees, acquisition tax, registration costs & annual property tax

Airbnb Revenue Estimate

Projected nightly rate, occupancy & net income for this property

Investment ROI

Annual yield, break-even timeline & 10-year return projection

Map & Street View

Map loading...

Location Accuracy Notice: Although we try to make the map accurate with coordinates or address details provided, the location data is provided by the agent. This map data should be used as reference for the surrounding area foremost.

Location Type Beds Price Land House View

* Sold properties shown for price comparison only. Prices reflect historical sale data.

Location Type Beds Rent/Month Land House View

* Rental prices shown are monthly rates. Contact property owner for current availability.