Back to results 7LDK Detached House for Sale in Namie, Fukushima - 199.7㎡

Needs Verification

This listing hasn't been verified recently. Tap to request a priority check!

Know someone who would love this? Gift them a subscription

¥12,000,000

Tashiri, Namie Town, Futaba District, Fukushima Prefecture

福島県双葉郡浪江町大字田尻字田尻

Sign in to save properties

Work with our partners to help you search, evaluate, and purchase property in Japan.

Book a Consultation
Buy House Akiya Bank Corner Lot Gas Heating/Cooking Large Garden Rural

Unlock the full description with a free trial

Includes AI translation, hazard data, cost estimates & nearby amenities

3 days free · cancel anytime

Start Free Trial

Spacious 7LDK Family Home in Namie Town, Fukushima

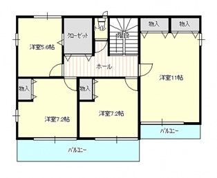
This substantial property is a 2-storey, light steel-framed detached house built in November 1999, offering a generous 199.70㎡ of living space on a large 564.71㎡ corner plot. The layout is a rare and spacious 7LDK, ideal for multi-generational living or those requiring ample room. The home features a south-facing orientation, a system kitchen, two toilets, a reheating function for the bath, a monitor-equipped intercom, and uses city gas. It is situated in a quiet residential area and includes parking for two or more vehicles.

According to the agent's remarks, key distances from the property are: Namie Station (JR Joban Line) is 4.3km, Namie Town Hall is 5.0km, Namie Clinic is 4.8km, Futaba Police Station Namie Branch is 4.8km, Namie Fire Station is 4.8km, Nijiiro Kindergarten is 5.9km, Namie Sosei Elementary and Junior High School is 5.9km, and Aeon Namie Store is 5.1km.

The property is located in the Tashiri area of Namie Town, Fukushima Prefecture. Namie Town is part of the coastal region of Fukushima and has a rich history of recovery and revitalization following the 2011 Great East Japan Earthquake and tsunami. The area is known for its resilient community spirit and beautiful natural surroundings, including scenic coastal views. A major landmark in the broader region is the iconic Mount Azuma-kofuji, a beautifully symmetrical volcanic peak located to the west, which is a popular hiking destination and offers stunning seasonal landscapes.

This description was AI-generated from the original Japanese listing and may contain inaccuracies. Please verify details with the source listing.

Summary

Bedrooms: 7
Parking: 2
Year built: 1999
Land size: 565 / 6,079sqft
House size: 200 / 2,150sqft

Short-Term Rental (Minpaku)

Transport

NRT

Narita International Airport — 197 km away

Nearest Konbini

lawson Lawson — 110 min walk

Internet Connectivity

Natural Hazard Assessment

Flood Risk Low Risk
Landslide Risk Moderate
Tsunami Risk Low Risk
Earthquake Hazard Moderate

Unlock hazard data with a free trial

Flood, landslide, tsunami & earthquake risk for this property

3 days free · cancel anytime

Start Free Trial

Purchase Cost & Tax Estimates

Agent fees, acquisition tax, registration costs & annual property tax

Airbnb Revenue Estimate

Projected nightly rate, occupancy & net income for this property

Investment ROI

Annual yield, break-even timeline & 10-year return projection

Map & Street View

Map loading...

Location Accuracy Notice: Although we try to make the map accurate with coordinates or address details provided, the location data is provided by the agent. This map data should be used as reference for the surrounding area foremost.

Location Type Beds Price Land House View

* Sold properties shown for price comparison only. Prices reflect historical sale data.

Location Type Beds Rent/Month Land House View

* Rental prices shown are monthly rates. Contact property owner for current availability.