Back to results New 2SSLDK House in Kawaguchi, Saitama - 2025 Build

Needs Verification

This listing hasn't been verified recently. Tap to request a priority check!

Know someone who would love this? Gift them a subscription

¥43,980,000

2-chome, Shibanakada, Kawaguchi City, Saitama Prefecture

埼玉県川口市芝中田2丁目

Sign in to save properties

Work with our partners to help you search, evaluate, and purchase property in Japan.

Book a Consultation
Buy Move-in Ready Near Station House New Build Modern House Parking Stadium

Unlock the full description with a free trial

Includes AI translation, hazard data, cost estimates & nearby amenities

3 days free · cancel anytime

Start Free Trial

Newly Built 2SSLDK House in Kawaguchi, Saitama

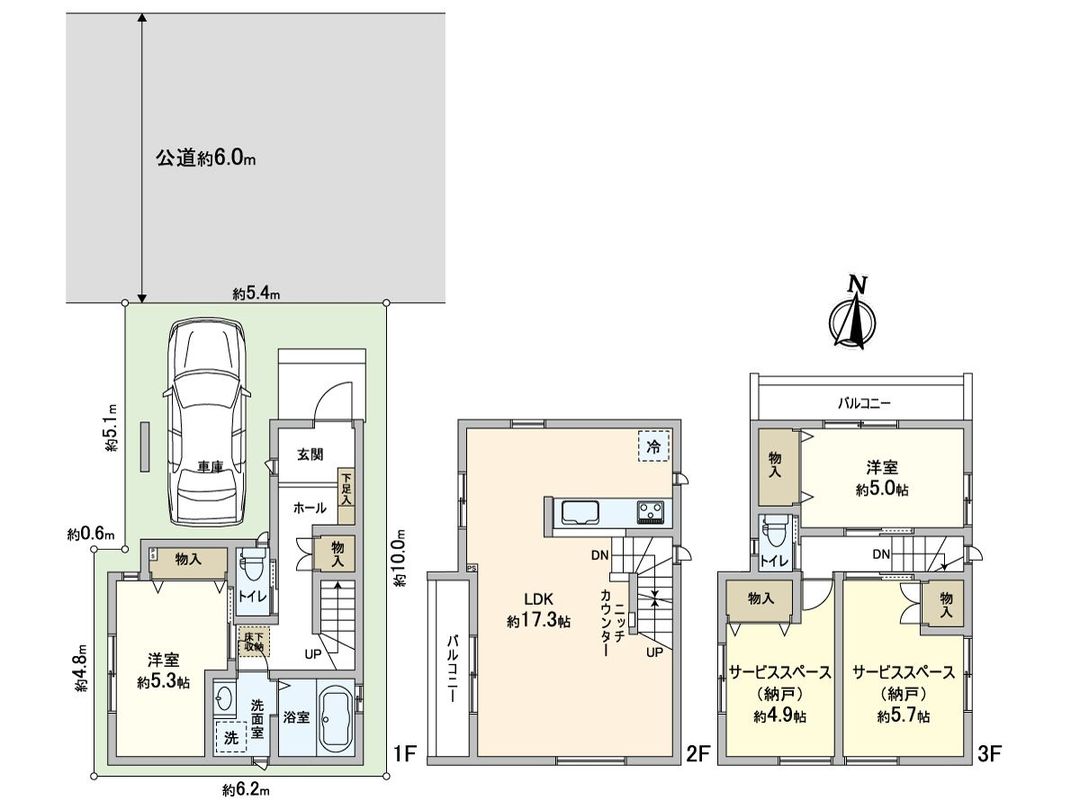
This newly built detached house, located in Kawaguchi City, Saitama Prefecture, offers a modern and spacious living environment. The property is a 3-story wooden structure with a total floor area of 106.65 sqm (approximately 32.26 tsubo), featuring a 2SSLDK layout. The building area includes a 9.32 sqm built-in garage on the first floor, providing excellent protection for your vehicle from wind and sun. The land area is 58.36 sqm (approximately 17.65 tsubo).

Key features of the property include a bright second-floor living room that creates an open, spacious atmosphere, a sunny Western-style room facing the balcony, and a living room staircase designed to foster family communication. The house is equipped with a system kitchen complete with a dishwasher to reduce household chores, a toilet with a comfortable warm-water washlet bidet seat, and a washbasin vanity with a shower for added convenience in shampooing and cleaning. Ample storage throughout allows for efficient use of living space, and double-glazed windows are installed for comfort.

According to the agent's special notes, the property is designated under Building Standard Law Article 22. The layout is 2SSLDK, and the stated building area includes the 9.32 sqm garage space on the first floor.

The location is highly convenient, with JR Keihin-Tohoku/Negishi Line's Warabi Station just a 14-minute walk away. A supermarket is within a 10-minute walk, adding to daily convenience. The front road is approximately 6 meters wide, contributing to a sense of openness. The property is scheduled for completion in December 2025 and is ready for immediate handover.

The area of Kawaguchi is part of the greater Tokyo metropolitan area, offering a blend of residential comfort and urban access. An interesting local fact is that Kawaguchi has historically been a major center for metal casting and foundry work, earning it the nickname "the town of metal." For recreation and culture, residents can easily visit the famous Kawaguchi Green Center, a large park and cultural complex with beautiful seasonal gardens and event spaces, located a short distance away.

This description was AI-generated from the original Japanese listing and may contain inaccuracies. Please verify details with the source listing.

Summary

Bedrooms: 2
Parking: 1
Year built: 2025
Land size: 58 / 628sqft
House size: 107 / 1,148sqft

Short-Term Rental (Minpaku)

Transport

HND

Haneda Airport — 32 km away

Nearby Konbini

Seven Eleven Seven Eleven — 7 min walk

Internet Connectivity

Natural Hazard Assessment

Flood Risk Low Risk
Landslide Risk Moderate
Tsunami Risk Low Risk
Earthquake Hazard Moderate

Unlock hazard data with a free trial

Flood, landslide, tsunami & earthquake risk for this property

3 days free · cancel anytime

Start Free Trial

Purchase Cost & Tax Estimates

Agent fees, acquisition tax, registration costs & annual property tax

Airbnb Revenue Estimate

Projected nightly rate, occupancy & net income for this property

Investment ROI

Annual yield, break-even timeline & 10-year return projection

Map & Street View

Map loading...

Location Accuracy Notice: Although we try to make the map accurate with coordinates or address details provided, the location data is provided by the agent. This map data should be used as reference for the surrounding area foremost.

Location Type Beds Price Land House View

* Sold properties shown for price comparison only. Prices reflect historical sale data.

Location Type Beds Rent/Month Land House View

* Rental prices shown are monthly rates. Contact property owner for current availability.