Back to results 4DK Detached House for Sale in Uji, Kyoto - 72.93㎡ on 167.43㎡ Land

Verified Listing

This property was checked recently and confirmed to still be available. Tap for details.

Verified Listing

This property has been verified in the last month. Our system regularly checks listings to ensure they are still available.

Last verified: April 6, 2026

Know someone who would love this? Gift them a subscription

¥4,000,000

Miyadani, Hironocho, Uji City, Kyoto Prefecture

京都府宇治市広野町宮谷

Sign in to save properties

Work with our partners to help you search, evaluate, and purchase property in Japan.

Book a Consultation
Buy Renovation Project House Rural Quiet Area Eco Friendly

Unlock the full description with a free trial

Includes AI translation, hazard data, cost estimates & nearby amenities

3 days free · cancel anytime

Start Free Trial

Spacious 4DK Home in a Quiet, Sunny Uji Neighborhood

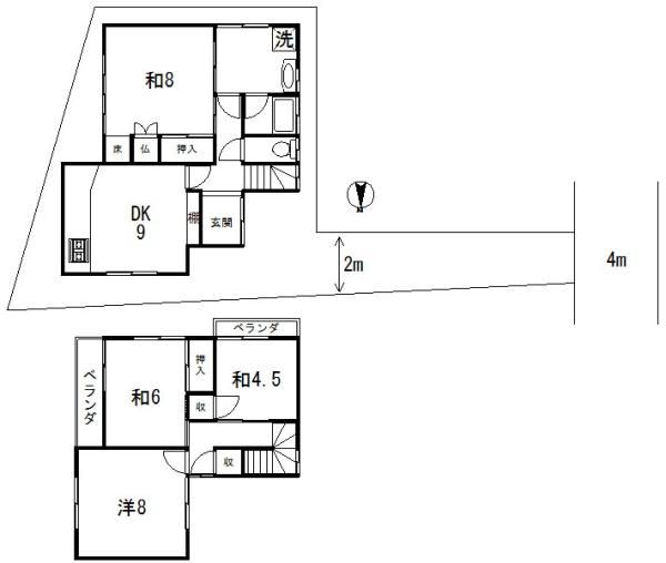
This detached house, located in the quiet residential area of Miyadani, Hironocho in Uji City, Kyoto Prefecture, offers a comfortable living space with a 4DK layout. The property is situated on elevated land, ensuring excellent sunlight and scenic views. The total floor area is 72.93 square meters, built on a generous land plot of 167.43 square meters.

The property is equipped with a system kitchen featuring a counter and an IH cooktop. The bathroom includes a reheating function and a bath dryer. Other interior features include a shower-equipped vanity, a washlet toilet seat, a walk-in closet, storage in all rooms, a TV monitor-equipped doorphone, and underfloor heating. The home is all-electric and designed with barrier-free considerations. It faces south and does not include a parking space. Utilities include public water supply, propane gas, and a septic tank system.

Access is convenient, with JR Nara Line's Shinden Station approximately a 13-minute walk away. The surrounding area is a nature-rich, quiet residential neighborhood. Within a 438-meter (approx. 6-minute walk) radius is Okubo Elementary School. Other nearby amenities include Izumiya Okubo Store (1,574m), a 7-Eleven (1,509m), and Okubo Station on the Kintetsu Kyoto Line (1,129m). The property is currently vacant. Please note the property is located in a sediment disaster warning area (steep slope) and has an unregistered extension.

This description was AI-generated from the original Japanese listing and may contain inaccuracies. Please verify details with the source listing.

Summary

Bedrooms: 4
Year built: 1975
Land size: 167 / 1,802sqft
House size: 73 / 785sqft

Short-Term Rental (Minpaku)

Transport

ITM

Osaka International Airport — 33 km away

Nearest Konbini

seven_eleven Seven Eleven — 8 min walk

Internet Connectivity

Natural Hazard Assessment

Flood Risk Low Risk
Landslide Risk Moderate
Tsunami Risk Low Risk
Earthquake Hazard Moderate

Unlock hazard data with a free trial

Flood, landslide, tsunami & earthquake risk for this property

3 days free · cancel anytime

Start Free Trial

Purchase Cost & Tax Estimates

Agent fees, acquisition tax, registration costs & annual property tax

Airbnb Revenue Estimate

Projected nightly rate, occupancy & net income for this property

Investment ROI

Annual yield, break-even timeline & 10-year return projection

Map & Street View

Map loading...

Location Accuracy Notice: Although we try to make the map accurate with coordinates or address details provided, the location data is provided by the agent. This map data should be used as reference for the surrounding area foremost.

Location Type Beds Price Land House View

* Sold properties shown for price comparison only. Prices reflect historical sale data.

Location Type Beds Rent/Month Land House View

* Rental prices shown are monthly rates. Contact property owner for current availability.