Back to results 3LDK Detached House for Sale in Yashio, Saitama

Verified Listing

This property was checked recently and confirmed to still be available. Tap for details.

Verified Listing

This property has been verified in the last month. Our system regularly checks listings to ensure they are still available.

Last verified: April 14, 2026

Know someone who would love this? Gift them a subscription

¥79,800,000

Ose 4-chome, Yashio City, Saitama Prefecture

埼玉県八潮市大瀬4丁目

Sign in to save properties

Work with our partners to help you search, evaluate, and purchase property in Japan.

Book a Consultation
Buy Near Station House Corner Lot Suburban Quiet Area

Unlock the full description with a free trial

Includes AI translation, hazard data, cost estimates & nearby amenities

3 days free · cancel anytime

Start Free Trial

Detached House for Sale in Yashio City, Saitama

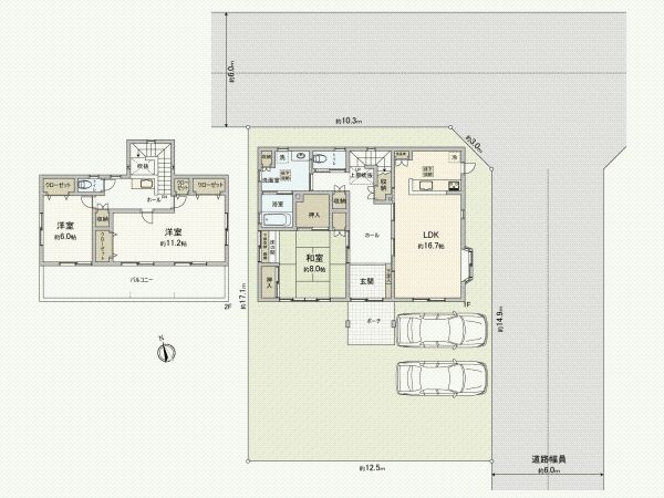
This property is a detached wooden house built in April 2008, located in Yashio City, Saitama Prefecture. The house offers a 3LDK layout with a total building area of 127.30 sqm (approximately 38.50 tsubo). It is situated on a spacious land plot of 212.49 sqm (approximately 64.27 tsubo). The property is conveniently located within a 10-minute walk from the "Yashio" station on the Tsukuba Express line, providing excellent access to central Tokyo and Tsukuba.

Critical agent notes provide detailed information about the land and access. The property is a corner lot. The primary road frontage is to the northeast, with a public road width of 6 meters and a frontage of 10.3 meters; a building line designation is not required. There is a second road frontage to the southeast, also a public road with a width of 6.0 meters and a frontage of 14.9 meters. The land is zoned as Category I Medium-to-High-Rise Exclusive Residential District within the urbanization promotion area. The building-to-land ratio is 60% with a floor area ratio of 200%. The land is registered as residential land and is flat, not sloped. Parking is available on-site. The current owner occupies the property, and the delivery date is negotiable.

This description was AI-generated from the original Japanese listing and may contain inaccuracies. Please verify details with the source listing.

Summary

Bedrooms: 3
Parking: 1
Year built: 2008
Land size: 212 / 2,287sqft
House size: 127 / 1,370sqft

Short-Term Rental (Minpaku)

Transport

HND

Haneda Airport — 29 km away

Nearby Konbini

Seven Eleven Seven Eleven — 4 min walk

Internet Connectivity

Natural Hazard Assessment

Flood Risk Low Risk
Landslide Risk Moderate
Tsunami Risk Low Risk
Earthquake Hazard Moderate

Unlock hazard data with a free trial

Flood, landslide, tsunami & earthquake risk for this property

3 days free · cancel anytime

Start Free Trial

Purchase Cost & Tax Estimates

Agent fees, acquisition tax, registration costs & annual property tax

Airbnb Revenue Estimate

Projected nightly rate, occupancy & net income for this property

Investment ROI

Annual yield, break-even timeline & 10-year return projection

Map & Street View

Map loading...

Location Accuracy Notice: Although we try to make the map accurate with coordinates or address details provided, the location data is provided by the agent. This map data should be used as reference for the surrounding area foremost.

Location Type Beds Price Land House View

* Sold properties shown for price comparison only. Prices reflect historical sale data.

Location Type Beds Rent/Month Land House View

* Rental prices shown are monthly rates. Contact property owner for current availability.