Back to results Spacious 3SLDK House in Chiba's Inage Ward

Verified Listing

This property was checked recently and confirmed to still be available. Tap for details.

Verified Listing

This property has been verified in the last month. Our system regularly checks listings to ensure they are still available.

Last verified: April 26, 2026

Know someone who would love this? Gift them a subscription

¥35,000,000

7-3 Konakadai, Inage Ward, Chiba City, Chiba Prefecture

千葉県千葉市稲毛区小仲台7丁目3

Sign in to save properties

Work with our partners to help you search, evaluate, and purchase property in Japan.

Book a Consultation
Buy House

Unlock the full description with a free trial

Includes AI translation, hazard data, cost estimates & nearby amenities

3 days free · cancel anytime

Start Free Trial

Family-Friendly Home in Chiba's Inage Ward

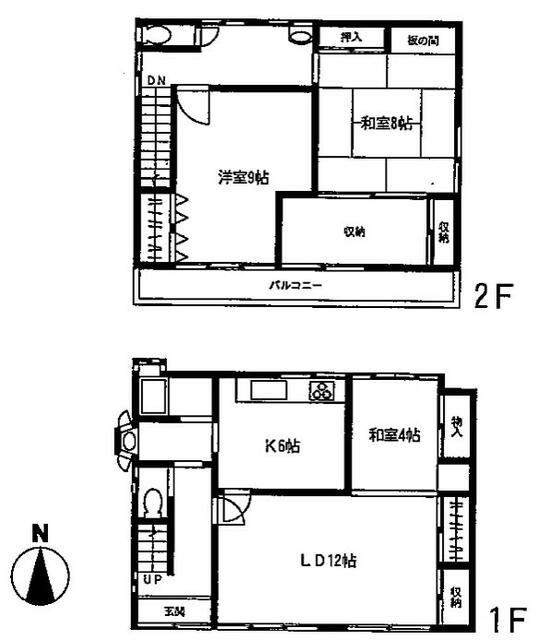
This spacious 3SLDK house in Chiba's Inage Ward offers a comfortable living space with a total floor area of 119.94㎡. Built in July 1973, the property features a wooden structure and sits on a 96.42㎡ plot of land. The layout includes a mix of Japanese and Western-style rooms, with an 18-tatami mat living/dining/kitchen area.

The closest major landmark is Makuhari Messe, Chiba's premier convention and exhibition center, located approximately 12 kilometers east of the property. This internationally recognized venue hosts numerous events throughout the year.

This description was AI-generated from the original Japanese listing and may contain inaccuracies. Please verify details with the source listing.

Summary

Bedrooms: 3
Parking: 1
Year built: 1973
Land size: 96 / 1,038sqft
House size: 120 / 1,291sqft

Short-Term Rental (Minpaku)

Transport

HND

Haneda Airport — 30 km away

Nearby Konbini

Seven Eleven Seven Eleven — 5 min walk

Internet Connectivity

Natural Hazard Assessment

Flood Risk Low Risk
Landslide Risk Moderate
Tsunami Risk Low Risk
Earthquake Hazard Moderate

Unlock hazard data with a free trial

Flood, landslide, tsunami & earthquake risk for this property

3 days free · cancel anytime

Start Free Trial

Purchase Cost & Tax Estimates

Agent fees, acquisition tax, registration costs & annual property tax

Airbnb Revenue Estimate

Projected nightly rate, occupancy & net income for this property

Investment ROI

Annual yield, break-even timeline & 10-year return projection

Map & Street View

Map loading...

Location Accuracy Notice: Although we try to make the map accurate with coordinates or address details provided, the location data is provided by the agent. This map data should be used as reference for the surrounding area foremost.

Location Type Beds Price Land House View

* Sold properties shown for price comparison only. Prices reflect historical sale data.

Location Type Beds Rent/Month Land House View

* Rental prices shown are monthly rates. Contact property owner for current availability.