Back to results 5DK House in Koga City, Ibaraki - 242m² Land, 10.8M Yen
Added 4 days ago

Know someone who would love this? Gift them a subscription

¥10,800,000

2-30-33 Misugicho, Koga City, Ibaraki Prefecture

茨城県古河市三杉町2-30-33

Sign in to save properties

Work with our partners to help you search, evaluate, and purchase property in Japan.

Book a Consultation
Buy Move-in Ready House Parking Quiet Area

Unlock the full description with a free trial

Includes AI translation, hazard data, cost estimates & nearby amenities

3 days free · cancel anytime

Start Free Trial

Spacious Family Home with Garage in Koga City

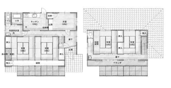
This detached house located at 2-30-33 Misugicho, Koga City, Ibaraki Prefecture, offers a generous 73.21 tsubo (242.05m²) lot. The property features a 5DK layout with a total floor area of 127.27m² (38.49 tsubo). Built in April 1980, this two-story wooden home provides ample space for a family.

The property includes parking for two cars and a garage, perfect for hobbies. The home features two toilets, a washlet, underfloor storage, and a bathroom over 1 tsubo in size. It faces southwest and has a front road width of over 6 meters. The property is connected to public water and main sewer systems. It uses propane gas.

The house is move-in ready and can be taken over immediately. It is also possible to discuss demolishing the building and delivering the land as a cleared site. The property is located within a 10-minute walk to Koga Dairoku Elementary School and Koga Daiichi Junior High School, making it convenient for families with children. The JR Utsunomiya Line's Koga Station is a 27-minute walk away. This property is a great opportunity to customize a home to your liking at an attractive price.

This description was AI-generated from the original Japanese listing and may contain inaccuracies. Please verify details with the source listing.

Summary

Bedrooms: 5
Parking: 2
Year built: 1980
Land size: 242 / 2,605sqft
House size: 127 / 1,370sqft

Short-Term Rental (Minpaku)

Transport

HND

Haneda Airport — 71 km away

Nearby Konbini

Daily Yamazaki Daily Yamazaki — 5 min walk

Internet Connectivity

Natural Hazard Assessment

Flood Risk Low Risk
Landslide Risk Moderate
Tsunami Risk Low Risk
Earthquake Hazard Moderate

Unlock hazard data with a free trial

Flood, landslide, tsunami & earthquake risk for this property

3 days free · cancel anytime

Start Free Trial

Purchase Cost & Tax Estimates

Agent fees, acquisition tax, registration costs & annual property tax

Airbnb Revenue Estimate

Projected nightly rate, occupancy & net income for this property

Investment ROI

Annual yield, break-even timeline & 10-year return projection

Map & Street View

Map loading...

Location Accuracy Notice: Although we try to make the map accurate with coordinates or address details provided, the location data is provided by the agent. This map data should be used as reference for the surrounding area foremost.

Location Type Beds Price Land House View

* Sold properties shown for price comparison only. Prices reflect historical sale data.

Location Type Beds Rent/Month Land House View

* Rental prices shown are monthly rates. Contact property owner for current availability.